Ayres Close, The Willows, Aylesbury

For Sale £700,000 (Freehold)

4 2 2

LOCATION

The Willows is a small development constructed in the late 1980
• s situated to the south west of Aylesbury. The location offers good access on foot or by bike towards Aylesbury college, Stoke Mandeville Hospital, Aylesbury Train Station and the town centre. There is good access by road to the town centre and going in the other direction towards Thame and Oxford. There are amenities within close walking distance including a small shopping parade, doctor
• s surgery and Infant/Junior School.

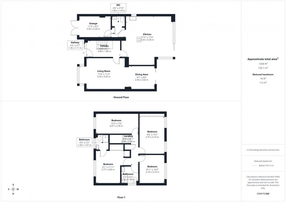
ACCOMMODATION

The property is entered via a welcoming entrance hall with stairs rising to the first floor. To the front, the living room is a bright and elegant space, featuring a large bay window that floods the room with natural light, complemented by bespoke built-in storage units. This room flows seamlessly through to the dining area, which boasts a stylish built-in bar unit and sliding doors opening onto the rear garden.

Undoubtedly the highlight of the home is the impressive modern kitchen, thoughtfully designed with both style and functionality in mind. It features a large central island with an inset gas hob, along with a range of integrated appliances including a fridge, oven, grill, dishwasher and washing machine. There is ample space for a dining table, and sliding doors provide further access to the garden, creating a wonderful indoor-outdoor living experience.

An inner hall provides access to the garage and a contemporary downstairs cloakroom.

Upstairs, the first-floor landing offers loft access and an airing cupboard. There are four well-proportioned bedrooms, each benefiting from built-in wardrobes, with the master bedroom enjoying its own en suite shower room. A stylish and modern family bathroom serves the remaining bedrooms.

Externally, the enclosed rear garden has been thoughtfully landscaped, featuring a patio area with a pergola, a well-maintained lawn, built-in planters and a shed. The garage has been partially converted, offering useful additional storage space, while the driveway provides off-road parking for multiple vehicles.

This exceptional home combines modern living with practical design, making it an ideal choice for families seeking space, comfort and convenience in a prime location.

  • POPULAR RESIDENTIAL LOCATION
  • IMMACULATE FOUR BEDROOM DETACHED HOME
  • STUNNING MODERN KITCHEN WITH LARGE ISLAND
  • DRIVEWAY PARKING FOR MULTIPLE VEHICLES
  • MAIN BEDROOM WITH EN SUITE
  • CLOSE TO STOKE MANDEVILLE HOSPITAL
  • EXCELLENT ROAD LINKS TO THAME AND OXFORD
  • PARTLY CONVERTED GARAGE
  • DOWNSTAIRS CLOAKROOM
  • SPACIOUS LIVING ROOM / DINING ROOM
Floorplan for Ayres Close, The Willows, Aylesbury
EPC Graph for Ayres Close, The Willows, Aylesbury
Similar Properties

Get an instant online valuation

Find out how much your property is worth