Allonby Way, Cumberland Park, Aylesbury

For Sale £650,000 (Freehold)

4 1 3

LOCATION

There are good transport links by road towards London, the M25 and M40 via the A41/A413 and an easy commute into London from Stoke Mandeville or Aylesbury, and Metropolitan Line tube available from Amersham. The location is ideal for families with several parks and playgrounds nearby. Walking distance of both primary, junior and senior schools, all in catchment area. Walking distance of canal tow path to walk into town.

ACCOMMODATION

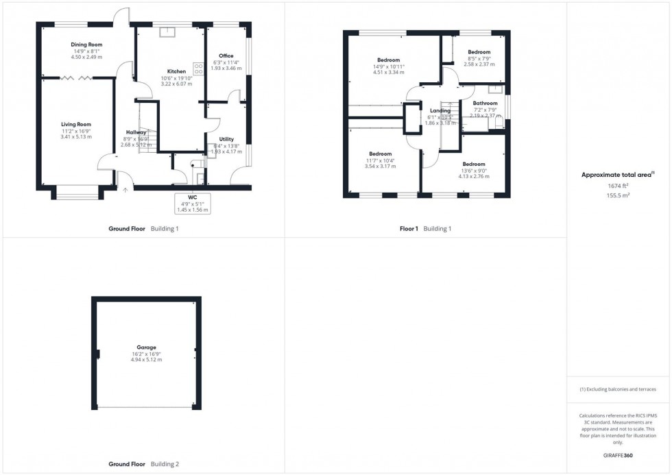
The accommodation comprises a welcoming entrance hall with cloakroom, storage cupboard and stairs to the first floor. The generous living room leads through to a separate dining room, with a door to the rear garden. The kitchen has space for a range style cooker and integrated fridge/freezer and dishwasher, complemented by a useful utility room with space for appliances. A further office provides flexible space with the potential to create an independent bedroom with en-suite, making it ideal for an elderly relative, teenager or guest accommodation.

On the first floor, a central landing gives access to the loft and airing cupboard, along with four double bedrooms. Bedrooms one, two and four benefit from built-in wardrobes, and all are served by a modern family bathroom.

Externally, the property boasts landscaped front and rear gardens, a double garage with electric door, and a block-paved driveway providing parking for three vehicles.

This rarely available home combines space, flexibility, and an excellent location, making it a superb opportunity for buyers seeking a long-term family property.

  • CUMBERLAND PARK
  • NO UPPER CHAIN
  • FOUR BEDROOM DETACHED HOME
  • WALKING DISTANCE TO TOP SCHOOLS
  • FANTASTIC ROAD AND COMMUTER LINKS
  • DOUBLE GARAGE WITH DRIVEWAY FOR THREE CARS
  • LANDSCAPED FRONT AND REAR GARDENS
  • FOUR DOUBLE BEDROOMS
Floorplan for Allonby Way, Cumberland Park, Aylesbury
EPC Graph for Allonby Way, Cumberland Park, Aylesbury
Similar Properties

Get an instant online valuation

Find out how much your property is worth