Hales Croft, Stoke Grange, Aylesbury

Sold Subject to Contract £675,000 (Freehold)

4 2 3

LOCATION

Stoke Grange is a popular development situated on the southside of Aylesbury. Constructed in the early 1980’s the estate has easy access towards London/M40 on the A413 and benefits from being within equal distance of Aylesbury and Stoke Mandeville Train Stations offering mainline services into London Marylebone. An ideal location for families the estate is within walking distance from Aylesbury Grammar and High School and is the catchment area for William Harding Combined. Further benefits to this location includes: Small parade of shops – walking distance to the Guttman Gym and Swimming pool – close by is Stoke Mandeville Hospital.

ACCOMMODATION

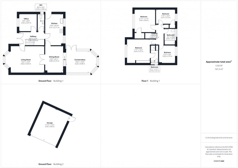
The accommodation begins with a welcoming entrance hall featuring stairs rising to the first floor and a useful storage cupboard. From here, there is access to a home office and a convenient downstairs cloakroom. The main living room is a generous and bright space, enhanced by a bay window and a feature fireplace, creating a warm and inviting atmosphere. Double doors lead through to the dining room, which in turn opens into the conservatory, offering views over the garden and direct access to the outside.

The kitchen is well proportioned and fitted with a built-in breakfast bar, space for a range-style cooker, and a door providing side access to the property, making it both practical and functional for family living.

To the first floor, the landing offers access to the loft and an airing cupboard. There are four well-sized bedrooms, with built-in wardrobes to bedrooms one, two and three. The principal bedroom benefits from an en suite shower room, while the remaining bedrooms are served by a family bathroom.

Externally, the property enjoys a wrap-around garden offering a variety of outdoor spaces. There is a gravelled area with established trees and access to the garage, along with a paved patio area ideal for outdoor seating, leading to a lawn bordered by mature shrubs. The garden is fully enclosed, providing privacy and security.

Additional benefits include a double garage and driveway parking, completing this well-appointed family home in a highly desirable location.

  • FOUR BEDROOM DETACHED FAMILY HOME
  • SOUGHT AFTER LOCATION
  • OFFERED WITH NO UPPER CHAIN
  • WRAP AROUND GARDEN
  • DOUBLE GARAGE AND DRIVEWAY PARKING
  • MULTIPLE RECEPTION ROOMS
  • EN SUITE AND FAMILY BATHROOM
  • FANTASTIC ROAD LINKS
  • CLOSE TO TOP SCHOOLS
  • HOME OFFICE
Floorplan for Hales Croft, Stoke Grange, Aylesbury
EPC Graph for Hales Croft, Stoke Grange, Aylesbury
Similar Properties

Get an instant online valuation

Find out how much your property is worth