Acorn Path, Kingsbrook, Aylesbury

Sold Subject to Contract £440,000 (Freehold)

4 2 1

LOCATION

Kingsbrook is an exciting new community of homes in Aylesbury. Designed in close consultation with RSPB, this beautiful location will ensure nature has a home too. Acres of meadowland, parks play areas & new schools will be built here making this a popular family destination. Kingsbrook is on the Southeast side of the town centre and offers good access to the A418 towards Milton Keynes and the A41 towards Tring & London. Please note there is an Estate Management charge.

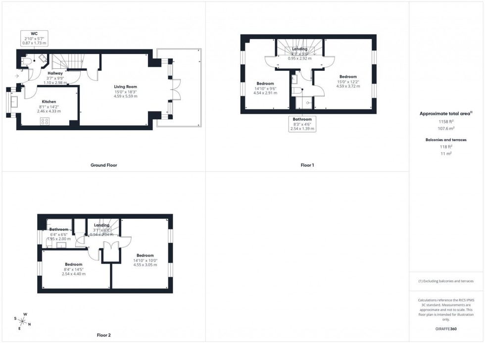
ACCOMMODATION

The ground floor comprises a welcoming entrance hall with stairs rising to the upper floors and a convenient cloakroom. To the front of the property is a contemporary kitchen, fitted with an inset gas hob and cooker hood, integrated fridge, washing machine and dishwasher. There is room for a breakfast table, making this a practical space. To the rear, the living room is a generous size and benefits from a useful storage cupboard and double doors opening directly onto the garden, allowing plenty of natural light.

On the first floor, the landing leads to the master bedroom, which enjoys the benefit of an en-suite shower room. There is also a further double bedroom on this level.

The second floor offers two additional bedrooms, along with a family bathroom. The landing includes an airing cupboard and provides access to the loft.

Externally, the enclosed rear garden has been thoughtfully landscaped and features a decked seating area, artificial lawn, built-in planter, and a further decked area to the rear, along with gated access. The property also benefits from two allocated parking spaces.

Overall, this is a spacious and well-maintained home set within a desirable modern development, offering excellent accommodation both inside and out.

  • NEW KINGSBROOK DEVELOPMENT
  • FOUR BEDROOM TERRACED HOUSE
  • ARRANGED OVER THREE FLOORS
  • LANDSCAPED REAR GARDEN
  • TWO ALLOCATED PARKING SPACES
  • MODERN KITCHEN
  • ALL DOUBLE BEDROOMS
  • FANTASTIC ORDER THROUGHOUT
  • CONTEMPORARY FAMILY BATHROOM
  • CLOSE TO SCHOOLS AND AMENITIES
Floorplan for Acorn Path, Kingsbrook, Aylesbury
EPC Graph for Acorn Path, Kingsbrook, Aylesbury
Similar Properties

Get an instant online valuation

Find out how much your property is worth