Cranesbill Way, Kingsbrook, Aylesbury

Sold Subject to Contract £490,000 (Freehold)

4 2 1

LOCATION

Kingsbrook is an exciting new community of homes in Aylesbury. Designed in close consultation with RSPB, this beautiful location will ensure nature has a home too. Acres of meadowland, parks play areas & new schools will be built here making this a popular family destination. Kingsbrook is on the Southeast side of the town centre and offers good access to the A418 towards Milton Keynes and the A41 towards Tring & London. Please note there is an Estate Management charge.

ACCOMMODATION

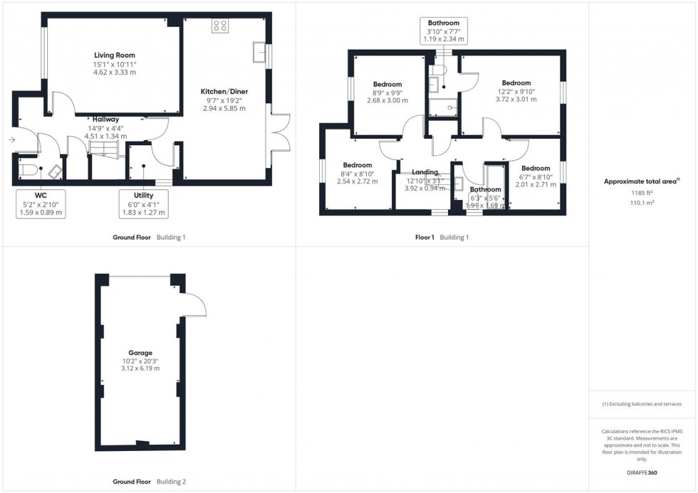
Upon entering, you are welcomed by an entrance hall featuring a useful cloakroom and a storage cupboard. The spacious living room offers an inviting area for relaxation, while the contemporary kitchen/diner is the heart of the home. It boasts an inset electric hob, oven, splashback, cooker hood, integrated dishwasher and integrated fridge/freezer. There is ample room for a dining set, and double doors open directly onto the rear garden, creating a wonderful indoor–outdoor flow. A separate utility room provides space for a washing machine and tumble dryer.

The first-floor landing includes loft access and an airing cupboard, leading to four well proportioned bedrooms. The master bedroom benefits from its own en suite shower room, while the remaining bedrooms are served by the family bathroom.

Outside, the property features an enclosed rear garden with a patio area, lawn and built-in planters. There is also a courtesy door to the garage and side gate access. The garage, equipped with light and power, offers additional storage or workspace. A driveway to the front provides parking for multiple vehicles, with the added benefit of an EV charger.

This fantastic home combines modern features, generous living space, and a prime location within one of the area's most popular new developments—making it an ideal choice for families seeking a ready-to-move-into property.

  • NEW KINGSBROOK DEVELOPMENT
  • FOUR BEDROOM DETACHED HOUSE
  • GARAGE, EV CHARGER & LARGE DRIVEWAY
  • MODERN KITCHEN/DINER WITH INTEGRATED APPLIANCES
  • EN SUITE TO MAIN BEDROOM
  • ENCLOSED REAR GARDEN
  • CLOSE TO SCHOOLS, LOCAL AMENITIES AND GOOD ROAD LINKS
  • UTILITY AND DOWNSTAIRS CLOAKROOM
Floorplan for Cranesbill Way, Kingsbrook, Aylesbury
EPC Graph for Cranesbill Way, Kingsbrook, Aylesbury
Similar Properties

Get an instant online valuation

Find out how much your property is worth