Paddington Lane, Kingsbrook, Aylesbury

Sold Subject to Contract £415,000 (Freehold)

4 2 2

LOCATION

Kingsbrook is an exciting new community of homes in Aylesbury. Designed in close consultation with RSPB, this beautiful location will ensure nature has a home too. Acres of meadowland, parks play areas & new schools will be built here making this a popular family destination. Kingsbrook is on the Southeast side of the town centre and offers good access to the A418 towards Milton Keynes and the A41 towards Tring & London. Please note there is an Estate Management charge.

ACCOMMODATION

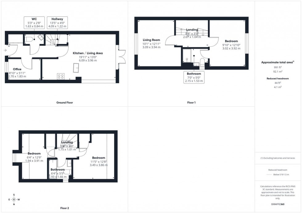
The ground floor welcomes you with a bright entrance hall, featuring a cloakroom and a useful storage cupboard. To the front is a dedicated office, ideal for home working. The spacious open-plan kitchen/living area sits to the rear, fitted with an inset gas hob, oven and cooker hood, along with designated spaces for a washing machine, fridge and dishwasher. The living area provides room for a sofa and dining table, with double doors to the rear garden.

On the first floor, the landing leads to a living room which could alternatively serve as a fourth bedroom, offering flexibility for changing needs. The master bedroom is also located on this level and benefits from its own en suite shower room.

The second floor provides access to the loft and hosts two further well-proportioned bedrooms, both featuring built-in wardrobes. A modern family bathroom completes this floor.

Outside, the enclosed rear garden offers a relaxing space with a patio area, lawn and a built-in planter, along with gated side access to the front. The garden shed has electric and light, as well as tumble dryer ventilation. The property also benefits from driveway parking for two cars.

This spacious and adaptable home delivers contemporary living in a thriving community setting, making it an excellent choice for a wide range of buyers.

  • KINGSBROOK DEVELOPMENT
  • 3/4 BEDROOM SEMI-DETACHED HOUSE
  • CLOSE TO LOCAL AMENITIES AND SCHOOLS
  • GROUND FLOOR OFFICE
  • MASTER BEDROOM WITH EN SUITE
  • DRIVEWAY PARKING FOR TWO CARS
  • ENCLOSED REAR GARDEN
  • FIRST-FLOOR LIVING ROOM
  • GOOD ROAD LINKS
  • OPEN-PLAN KITCHEN/LIVING AREA
Floorplan for Paddington Lane, Kingsbrook, Aylesbury
EPC Graph for Paddington Lane, Kingsbrook, Aylesbury
Similar Properties

Get an instant online valuation

Find out how much your property is worth