Akeman Row, Weston Turville, Aylesbury

For Sale £535,000 (Freehold)

4 3 1

LOCATION

Weston Turville has a small selection of shops, several pubs with restaurants and an Ofsted-rated
• Good
•  C of E junior school. In addition there are rugby & golf clubs as well as a reservoir for sailing and angling. The nearby Holiday Inn provides a health club with a gym and swimming pool, with Aylesbury Town Centre offering more comprehensive shopping and grammar schools for boys and girls. Buckinghamshire is renowned for its state and private education (details from the local authority). Stoke Mandeville, Aylesbury and Wendover provide a train service to London Marylebone.

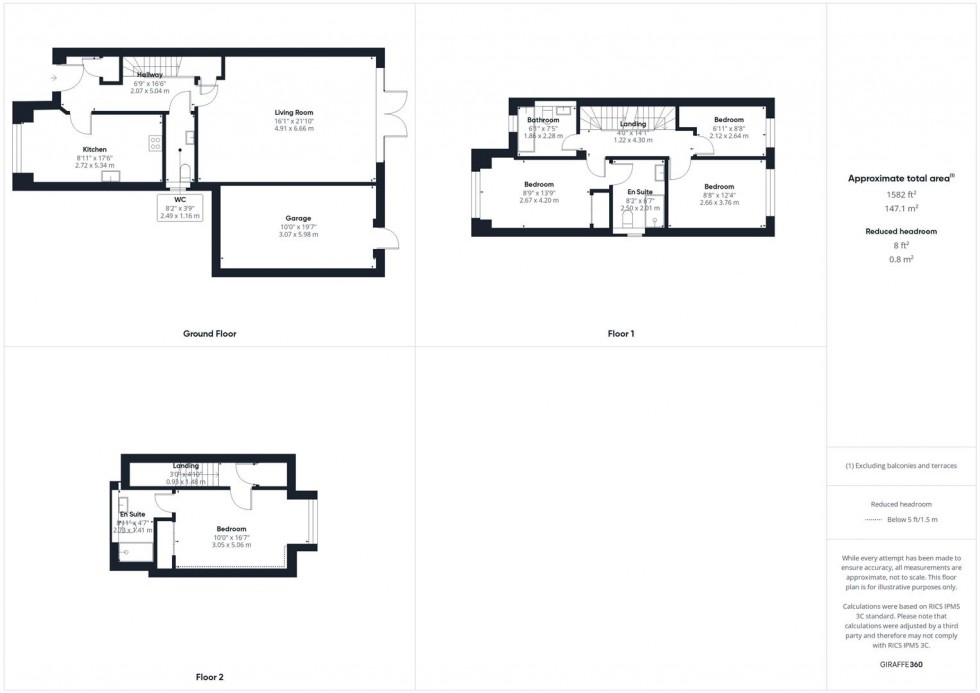
ACCOMMODATION

Set on a private road in the desirable village of Weston Turville, this well presented four bedroom semi-detached home offers spacious and modern family living, backing directly onto open fields for a peaceful and scenic outlook.

The property opens with a welcoming entrance hall, giving access to a handy cloakroom and leading through to a bright and airy kitchen/diner. The kitchen is fitted with integrated appliances, offers ample worktop and cupboard space, and includes room for an American-style fridge/freezer.

To the rear of the ground floor is a generous living room, ideal for relaxing and hosting, featuring French doors that open onto the garden and allow natural light to flood the space.

The first floor offers three well proportioned bedrooms, one of which benefits from its own en suite shower room, in addition to a modern family bathroom.

The second floor is dedicated to a spacious master suite, complete with a built-in wardrobe and a stylish en suite.

Outside, the fully enclosed rear garden enjoys a patio area, along with a lawn bordered by fencing for privacy. To the front, the property boasts a garage and driveway parking for two cars, as well as access to a visitors' space, making this home as practical as it is attractive.

This home combines modern comfort with a semi-rural setting and is ideally located for access to local amenities, well-regarded schools, and excellent transport links.

  • FOUR BEDROOM FAMILY HOME
  • SEMI DETACHED
  • SET ON A PRIVATE ROAD
  • BACKING ONTO OPEN FIELDS
  • WELL PRESENTED THROUGHOUT
  • DRIVEWAY, GARAGE AND REAR GARDEN
  • EXCELLENT ROAD LINKS TO A41/M25
  • TWO EN SUITE BATHROOMS
  • PERFECT FOR COMMUTERS
  • EXCELLENT SCHOOL CATCHMENT
Floorplan for Akeman Row, Weston Turville, Aylesbury
EPC Graph for Akeman Row, Weston Turville, Aylesbury
Similar Properties

Get an instant online valuation

Find out how much your property is worth