Tring Road, Aylesbury, Buckinghamshire

Sold Subject to Contract £325,000 (Freehold)

2 1 1

LOCATION

Aylesbury town centre is within walking distance, with an excellent range of shopping and recreational facilities, numerous restaurants and a main line rail station (Marylebone 1 hour). Aylesbury is particularly well served by three of the area’s top performing Grammar Schools- Aylesbury Grammar School for boys, High School for Girls and Sir Henry Floyd (mixed). Inspired by the rolling Chiltern Hills, the Aylesbury Waterside Theatre provides an entertaining evening out at the heart of the Canalside and beautiful outdoor purpose-built restaurant and entertainment. Short walking distance to Aquavale swimming & fitness centre, Tesco superstore & the mainline line rail station (Marylebone 1 hour) & there is good access by road onto the A41 leading towards London/M25.

ACCOMMODATION

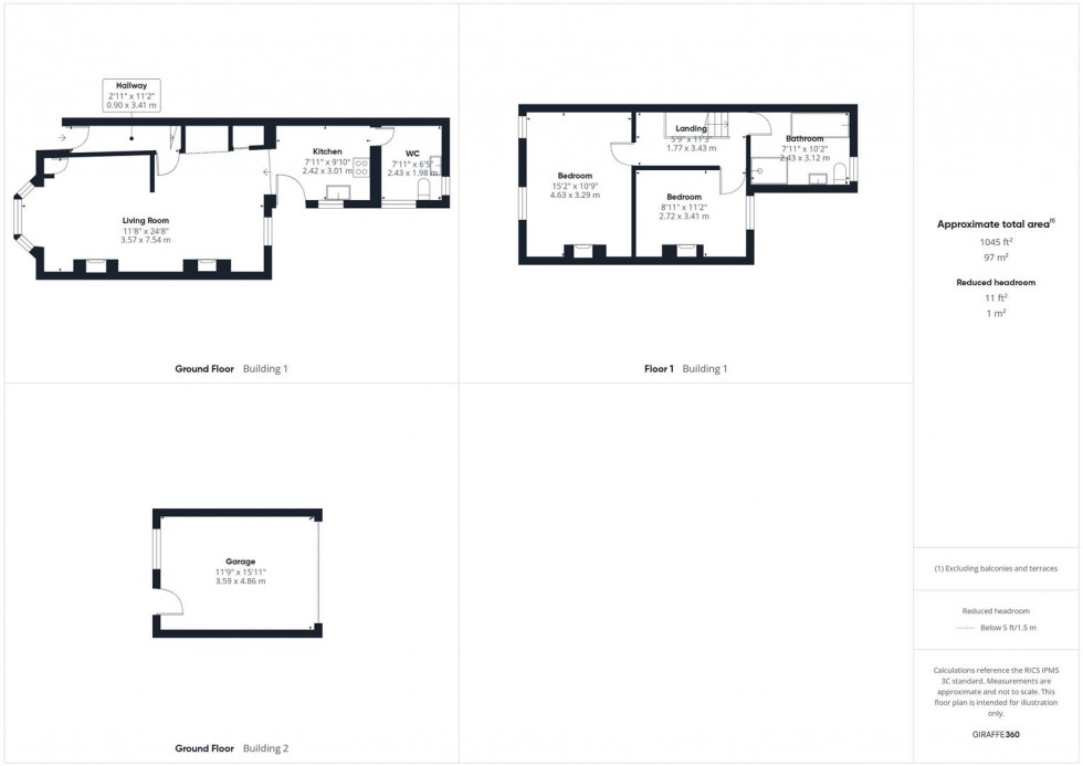
Upon entering, you are welcomed by an entrance hall with stairs rising to the first floor. The hall leads into an inviting open-plan living room/dining room, featuring two attractive gas fireplaces and ample space for a range of furniture, creating a warm and flexible living area.

To the rear, the kitchen is fitted with an inset gas hob, oven and cooker hood, with additional space for a fridge and dishwasher. A door opens directly onto the garden. Adjacent to the kitchen is a convenient utility/WC, offering space for a washing machine and tumble dryer.

The first floor provides loft access, two well-proportioned double bedrooms, and a modern family bathroom complete with a shower cubicle, WC, sink, and separate bathtub.

Outside, the property boasts a south-facing garden with both patio and lawned areas, ideal for outdoor dining and relaxation. At the rear of the garden, there is access to a garage equipped with light and power, offering excellent storage or secure parking.

  • CENTRAL LOCATION
  • NO UPPER CHAIN
  • TWO BEDROOM PERIOD PROPERTY
  • MODERN BATHROOM
  • WALKING DISTANCE OF TOWN CENTRE AND STATION
  • SOUTH-FACING GARDEN
  • GARAGE TO THE REAR
  • OPEN-PLAN LIVING / DINING ROOM
  • UTILITY / WC
  • CLOSE TO GRAMMAR SCHOOLS
Floorplan for Tring Road, Aylesbury, Buckinghamshire
EPC Graph for Tring Road, Aylesbury, Buckinghamshire
Similar Properties

Get an instant online valuation

Find out how much your property is worth