Grecian Street, Aylesbury, Buckinghamshire

For Sale £300,000 (Freehold)

2 1 1

LOCATION

Aylesbury town centre is within walking distance, with an excellent range of shopping and recreational facilities, numerous restaurants and a main line rail station (Marylebone 1 hour). Aylesbury is particularly well served by three of the area’s top performing Grammar Schools- Aylesbury Grammar School for boys, High School for Girls and Sir Henry Floyd (mixed). Inspired by the rolling Chiltern Hills, the Aylesbury Waterside Theatre provides an entertaining evening out at the heart of the Canalside and beautiful outdoor purpose-built restaurant and entertainment. Short walking distance to Aquavale swimming & fitness centre, Tesco superstore & the mainline line rail station (Marylebone 1 hour) & there is good access by road onto the A41 leading towards London/M25.

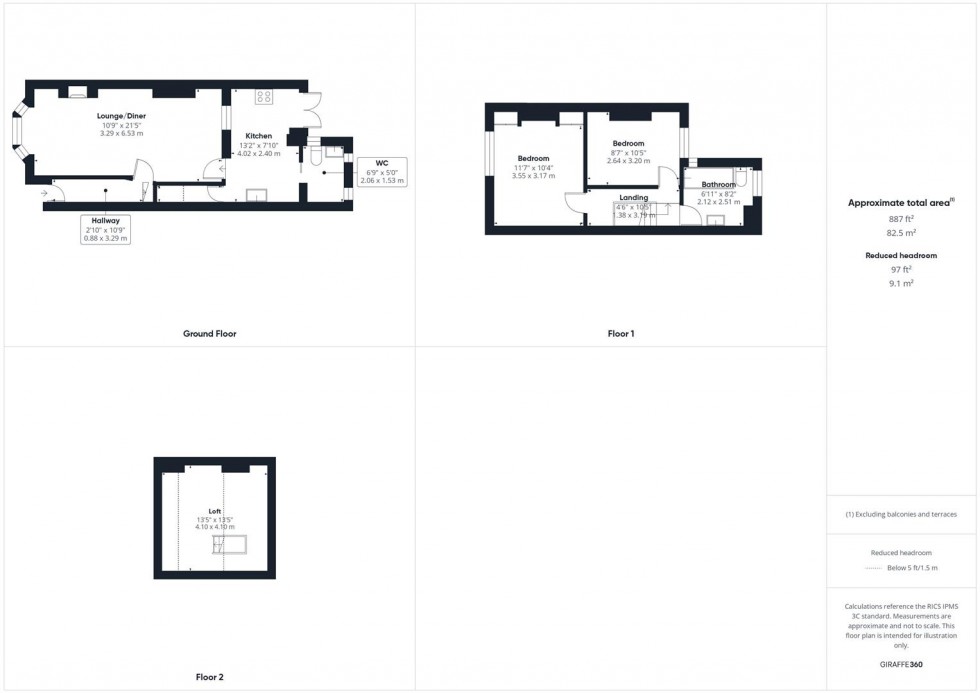
ACCOMMODATION

The property is ideally situated close to the town centre, local amenities, and the highly regarded Aylesbury Grammar School, making it an excellent choice for first-time buyers, small families or investors. Offered with no upper chain, this home is ready for immediate occupation.

Upon entering, you are greeted by a welcoming entrance hall with stairs to the first floor, leading into a spacious lounge/diner featuring a beautiful brick-built fireplace with a log burner, creating a warm and inviting focal point.

The refitted kitchen is well appointed with an inset gas hob, oven and extractor fan, along with space for a fridge and a convenient breakfast bar. A door provides direct access to the rear garden.

A cloakroom with utility space offers additional practicality, with plumbing and space for both a washing machine and tumble dryer.

Upstairs, the property offers two well proportioned bedrooms and a family bathroom. There is also loft access, with the loft being fully boarded, providing useful storage or potential for further development (subject to planning).

Outside, the rear garden enjoys a patio area leading onto a lawned area bordered by fencing.

  • CENTRAL LOCATION
  • TWO BEDROOM TERRACED HOUSE
  • OFFERED WITH NO UPPER CHAIN
  • SPACIOUS LOUNGE/DINER WITH BRICK BUILT FIREPLACE
  • CLOAKROOM WITH UTILITY SPACE
  • CLOSE TO AYLESBURY GRAMMAR SCHOOL
  • REFITTED KITCHEN
  • LOFT FULLY BOARDED
Floorplan for Grecian Street, Aylesbury, Buckinghamshire
EPC Graph for Grecian Street, Aylesbury, Buckinghamshire
Similar Properties

Get an instant online valuation

Find out how much your property is worth