Hazlehurst Drive, Elm Farm, Aylesbury

Sold Subject to Contract £475,000 (Freehold)

3 1 2

LOCATION

Elm Farm is a popular development situated on the southside of Aylesbury. Easy access towards London/M40 on the A413 and benefits from being within equal distance of Aylesbury and Stoke Mandeville Train Stations offering mainline services into London Marylebone. An ideal location for families the estate is within walking distance from Aylesbury Grammar and High School and is the catchment area for William Harding Combined. Further benefits to this location includes: Small parade of shops – walking distance to the Guttman Gym and Swimming pool – close by is Stoke Mandeville Hospital.

ACCOMMODATION

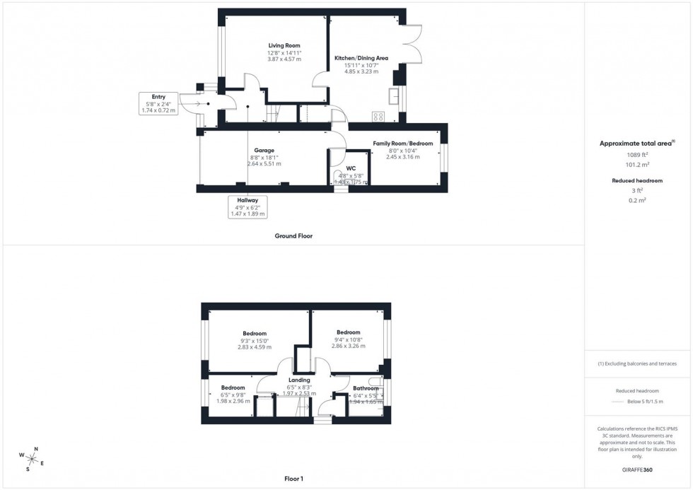
The ground floor begins with a porch leading into a hallway with stairs rising to the first floor. The living room is a comfortable space, featuring a fireplace as a focal point. To the rear, the kitchen/diner offers ample room for both cooking and dining, with space for a cooker, an additional appliance, and a dining table set. A useful storage cupboard adds practicality, and a door leads through to a versatile family room, which could also serve as a fourth bedroom depending on requirements. Completing the ground floor is a WC/utility room, with space for a washing machine and housing the boiler.

Upstairs, the first floor landing provides access to the loft and includes an airing cupboard. There are three bedrooms and a family bathroom serving the accommodation.

Externally, the property benefits from an enclosed rear garden featuring a patio area, steps leading up to a lawn, and well-stocked shrub borders. Gated side access leads to the front of the property. Further advantages include a garage with light and power, along with a block paved driveway providing off-road parking.

This is a fantastic opportunity to acquire a versatile and well-located home in a popular residential area.

  • ELM FARM AREA
  • THREE/FOUR BEDROOM DETACHED HOME
  • NO UPPER CHAIN
  • CLOSE TO WELL REGARDED SCHOOLS
  • FANTASTIC ROAD LINKS
  • GARAGE AND DRIVEWAY
  • VERSATILE FAMILY ROOM/BEDROOM
  • ENCLOSED REAR GARDEN
  • DOWNSTAIRS WC/UTILITY
  • KITCHEN/DINER
Floorplan for Hazlehurst Drive, Elm Farm, Aylesbury
EPC Graph for Hazlehurst Drive, Elm Farm, Aylesbury
Similar Properties

Get an instant online valuation

Find out how much your property is worth