David Close, Stoke Grange, Aylesbury

For Sale £495,000 (Freehold)

3 1 2

LOCATION

Stoke Grange is a popular development situated on the southside of Aylesbury. Constructed in the early 1980’s the estate has easy access towards London/M40 on the A413 and benefits from being within equal distance of Aylesbury and Stoke Mandeville Train Stations offering mainline services into London Marylebone. An ideal location for families the estate is within walking distance from Aylesbury Grammar and High School and is the catchment area for William Harding Combined. Further benefits to this location includes: Small parade of shops – walking distance to the Guttman Gym and Swimming pool – close by is Stoke Mandeville Hospital.

ACCOMMODATION

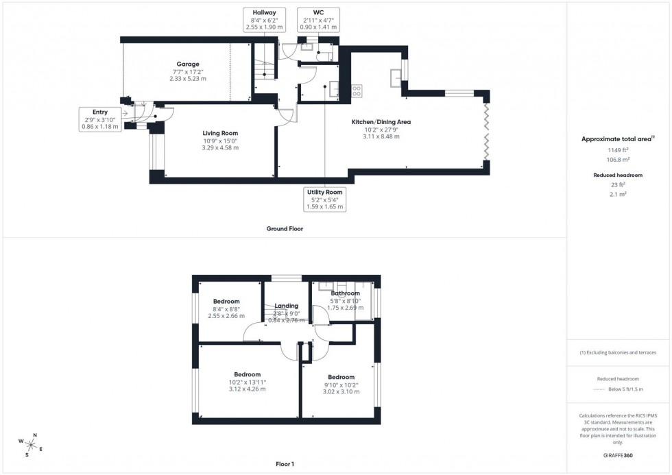
Upon entering the property, you are welcomed into a hallway with internal access to the garage and a door leading into the main living space. The spacious living room offers a comfortable and inviting setting, perfect for relaxing or entertaining guests.

To the rear of the property is a generously sized kitchen/dining area, thoughtfully designed to combine practicality with modern living. The kitchen is fitted with an inset gas hob with cooker hood over, integrated oven and grill, and an integrated dishwasher, along with space for an American-style fridge freezer. A breakfast bar provides additional seating, while there is ample room for a family dining table. Bi-fold doors open out onto the rear garden, allowing plenty of natural light and creating a seamless indoor-outdoor living experience.

An inner hallway leads to the first-floor staircase and provides access to a convenient cloakroom and a separate utility room, which offers space for both a washing machine and tumble dryer.

Upstairs, the first-floor landing includes access to the loft and an airing cupboard. There are three bedrooms, all offering comfortable accommodation. The family bathroom is fitted with a modern suite to serve the household.

Externally, the property boasts an enclosed rear garden featuring a patio area ideal for outdoor dining, built-in planters and a lawned section. A garden shed provides additional storage, and gated side access leads to the front of the property. To the front, there is a driveway offering off-road parking, along with access to the garage.

  • POPULAR STOKE GRANGE AREA
  • THREE BEDROOM SEMI-DETACHED HOME
  • LARGE KITCHEN/DINING AREA
  • GARAGE AND DRIVEWAY
  • CLOAKROOM AND SEPARATE UTILITY ROOM
  • ENCLOSED REAR GARDEN
  • CLOSE TO STOKE MANDEVILLE HOSPITAL
  • CLOSE TO WELL REGARDED SCHOOLS
Floorplan for David Close, Stoke Grange, Aylesbury
EPC Graph for David Close, Stoke Grange, Aylesbury
Similar Properties

Get an instant online valuation

Find out how much your property is worth