Eames Close, Cleveland Park, Aylesbury

For Sale £240,000 (Freehold)

1 1 1

LOCATION

Cleveland Park is a development to the eastern outskirts of Aylesbury’s town centre. Close to fields which offers great opportunity for dog walking and country walks. The location has good transport links by road to the A41 towards London/M25 and the A418 towards Milton Keynes/North bound M1. The town centre and all its amenities are just over a mile walk away.

ACCOMMODATION

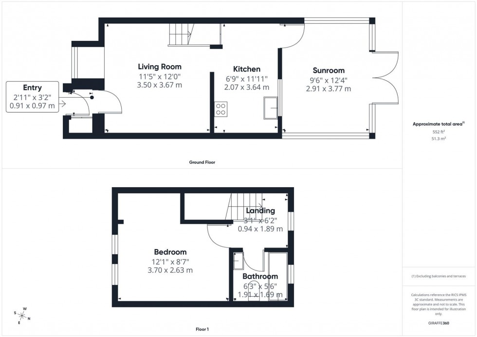
The property is entered via a hallway with a useful storage cupboard, leading through to the living room. The living room provides a comfortable space, with stairs rising to the first floor.

To the rear of the property is the kitchen, fitted with a range of units and incorporating an inset gas hob, oven and cooker hood, along with space for a washing machine and fridge. A door from the kitchen leads into the conservatory, creating an additional versatile reception area with doors opening out onto the garden.

Upstairs, the first floor comprises a double bedroom with access to the loft, and a bathroom fitted with a suite.

Externally, the property benefits from a private rear garden designed for low maintenance, featuring artificial grass, a decked seating area, and a shed for storage. The property also includes one allocated parking space.

  • POPULAR AND CONVENIENT LOCATION
  • ONE BEDROOM TERRACED HOUSE
  • EXCELLENT ROAD LINKS
  • ONE ALLOCATED PARKING SPACE
  • PRIVATE REAR GARDEN
  • CONSERVATORY
  • EASY ACCESS TO TOWN AND STATION
Floorplan for Eames Close, Cleveland Park, Aylesbury
EPC Graph for Eames Close, Cleveland Park, Aylesbury
Similar Properties

Get an instant online valuation

Find out how much your property is worth