Turner Close, Cleveland Park, Aylesbury

For Sale £220,000 (Freehold)

1 1 1

LOCATION

Cleveland Park is a development to the eastern outskirts of Aylesbury’s town centre. Close to fields which offers great opportunity for dog walking and country walks. The location has good transport links by road to the A41 towards London/M25 and the A418 towards Milton Keynes/North bound M1. The town centre and all its amenities are just over a mile walk away.

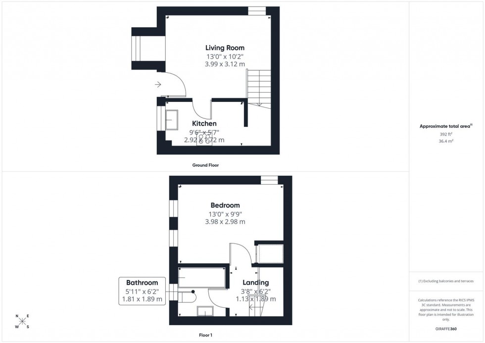
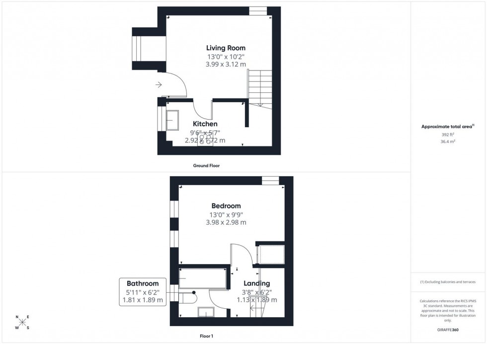
ACCOMMODATION

The accommodation begins with direct access into the living room, a well-proportioned space with room for a range of living and dining furniture. Stairs rise from the living room to the first floor, creating a practical and efficient layout.

The kitchen is fitted with an inset electric hob and oven, with additional space and plumbing for a fridge and washing machine.

On the first floor, the landing provides access to the loft and leads to the main bedroom and bathroom. The dual-aspect double bedroom is bright and airy, offering ample space for bedroom furniture. The bathroom completes the internal accommodation.

Externally, the property benefits from driveway parking to the front for one car.

  • ONE BEDROOM TERRACED HOUSE
  • POPULAR LOCATION
  • NO UPPER CHAIN
  • DRIVEWAY PARKING
  • DUAL ASPECT DOUBLE BEDROOM
  • EASY ACCESS TO TOWN CENTRE & STATION
  • BRAND NEW CARPET THROUGHOUT
Floorplan for Turner Close, Cleveland Park, Aylesbury
EPC Graph for Turner Close, Cleveland Park, Aylesbury
Similar Properties

Get an instant online valuation

Find out how much your property is worth