Mitchell Close, Aylesbury, Buckinghamshire

For Sale £200,000 (Leasehold)

3 2 1

LOCATION

Aylesbury town centre is within walking distance, with an excellent range of shopping and recreational facilities, numerous restaurants and a main line rail station (Marylebone 1 hour). Aylesbury is particularly well served by three of the area’s top performing Grammar Schools- Aylesbury Grammar School for boys, High School for Girls and Sir Henry Floyd (mixed). Inspired by the rolling Chiltern Hills, the Aylesbury Waterside Theatre provides an entertaining evening out at the heart of the Canalside and beautiful outdoor purpose-built restaurant and entertainment.

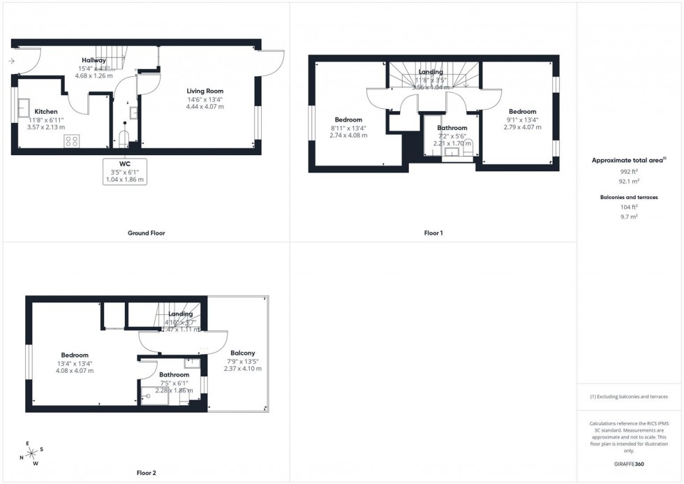
ACCOMMODATION

Arranged over three floors, the property is entered via an entrance hall with stairs rising to the upper levels. The modern kitchen is fitted with a range of units and benefits from an inset gas hob, oven and grill, cooker hood, and integrated appliances including a fridge, washing machine and dishwasher. A convenient cloakroom is also located on the ground floor. To the rear, the living room provides a comfortable space, complete with a useful storage cupboard and a door opening directly onto the garden.

The first floor offers two double bedrooms, along with a family bathroom and an airing cupboard. Stairs continue to the second floor, where the master bedroom can be found, featuring a built-in wardrobe and a private en suite. This floor also provides access to a private balcony, offering an ideal spot to enjoy some outdoor space.

Externally, the property benefits from an enclosed rear garden with a built-in seating area, a shed for additional storage and gated rear access. To the front, there is an allocated parking space.

This attractive home combines modern living with a highly convenient location, making it an excellent choice for a range of buyers.

NOTES

LEASE INFO - 125 year lease with 117 years left. Rent, service charge and buildings insurance approx £604.10 p/m.

  • 50% SHARED OWNERSHIP
  • THREE BEDROOM TERRACED HOUSE
  • CENTRAL LOCATION
  • ALLOCATED PARKING
  • SET OVER THREE FLOORS
  • PRIVATE BALCONY & GARDEN
  • WALKING DISTANCE TO STATION
  • WALKING DISTANCE TO TOWN CENTRE
  • EN SUITE, FAMILY BATHROOM & CLOAKROOM
  • ALL DOUBLE BEDROOMS
Floorplan for Mitchell Close, Aylesbury, Buckinghamshire
EPC Graph for Mitchell Close, Aylesbury, Buckinghamshire
Similar Property

Get an instant online valuation

Find out how much your property is worth