Mitchell Close, Aylesbury, Buckinghamshire

Sold Subject to Contract £200,000 (Leasehold)

3 2 1

LOCATION

Aylesbury town centre is within walking distance, with an excellent range of shopping and recreational facilities, numerous restaurants and a main line rail station (Marylebone 1 hour). Aylesbury is particularly well served by three of the area’s top performing Grammar Schools- Aylesbury Grammar School for boys, High School for Girls and Sir Henry Floyd (mixed). Inspired by the rolling Chiltern Hills, the Aylesbury Waterside Theatre provides an entertaining evening out at the heart of the Canalside and beautiful outdoor purpose-built restaurant and entertainment.

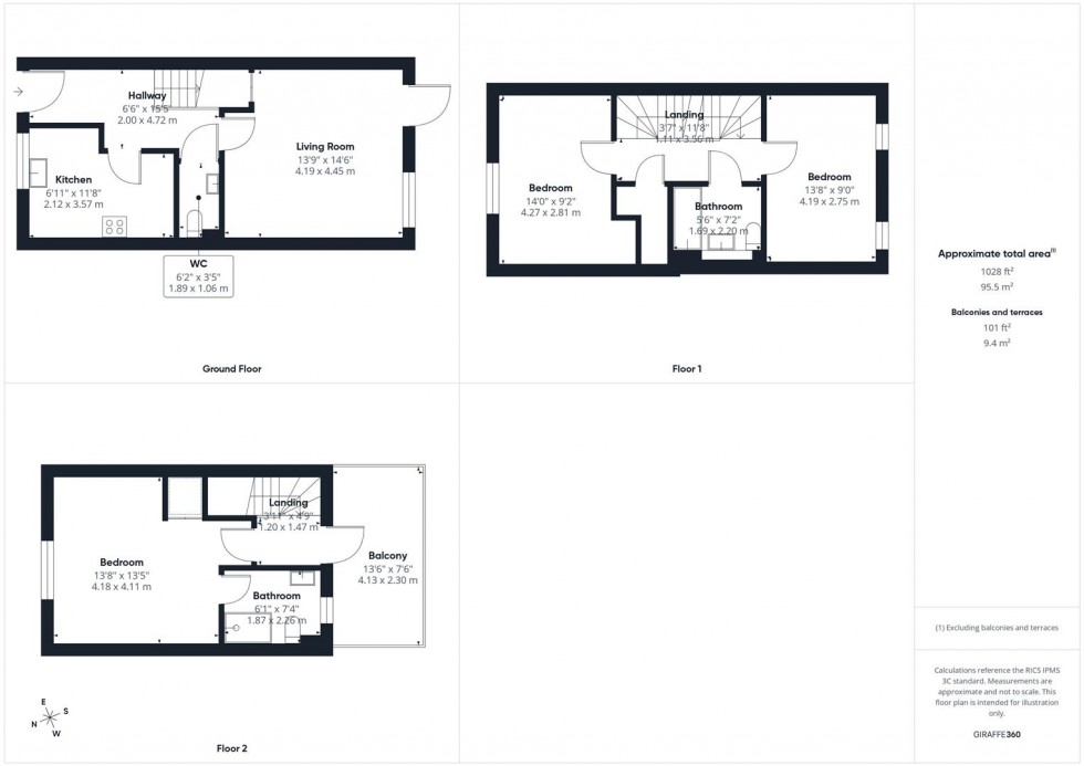
ACCOMMODATION

The ground floor opens into a spacious entrance hall with stairs rising to the upper floors and access to a convenient cloakroom. To the front of the property is a well-equipped kitchen, fitted with an inset gas hob, oven, splashback and cooker hood, along with integrated appliances including a fridge, washing machine and dishwasher. To the rear, the spacious living room provides a bright and welcoming space, complete with a useful storage cupboard and direct access to the garden.

On the first floor, there is a central landing with an airing cupboard, serving two double bedrooms and a family bathroom.

The second floor is dedicated to the impressive principal bedroom suite, featuring a built-in wardrobe, a private en suite shower room, and access to a balcony, offering an ideal spot to relax.

Externally, the rear garden has been designed for low maintenance, with a patio area, artificial lawn, and a garden shed, as well as rear gated access. To the front of the property, there is allocated parking for added convenience.

This attractive home combines a practical layout with a highly convenient location, making it a fantastic opportunity for a wide range of buyers.

NOTES

LEASE INFO - 125 year lease with 116 years left. £137 p/w for rent & charges.

  • 50% SHARED OWNERSHIP
  • THREE BEDROOM TERRACED HOUSE
  • ARRANGED OVER THREE FLOORS
  • ALLOCATED PARKING TO THE FRONT
  • MAIN BEDROOM WITH EN SUITE
  • PRIVATE BALCONY
  • LOW MAINTENANCE GARDEN
  • WALKING DISTANCE TO TOWN AND STATION
  • CLOSE TO COLLEGE AND SCHOOLS
  • DOWNSTAIRS CLOAKROOM
Floorplan for Mitchell Close, Aylesbury, Buckinghamshire
EPC Graph for Mitchell Close, Aylesbury, Buckinghamshire

Get an instant online valuation

Find out how much your property is worth