Marsworth Drive, Kingsbrook, Aylesbury

For Sale £575,000 (Freehold)

4 2 1

LOCATION

Situated within the new and popular Kingsbrook development on the edge of Aylesbury, this property enjoys a prime position within a modern community designed for sustainable living. Residents benefit from a range of local amenities including a Tesco express, Wenzels, Esquires coffee shop and dental surgery, alongside extensive green spaces, walking routes and nature reserves. The development is particularly popular with families, offering excellent educational provision including The Kingsbrook School and local primary schools within easy walking distance. For commuters, there are convenient road links via the A41, while Aylesbury station provides direct services to London Marylebone in around an hour, making this an ideal location for those seeking a balance of countryside surroundings and connectivity. Please note there is an Estate Management charge.

ACCOMMODATION

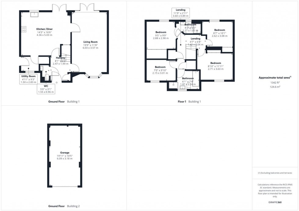
The property is entered via an entrance hall with stairs rising to the first floor, a storage cupboard and access to a convenient downstairs cloakroom. The dual aspect living room is a bright and comfortable space, enhanced by custom fitted shutter blinds and double doors opening out to the rear garden.

To the rear of the property is a generous kitchen/diner, ideal for both everyday family life and entertaining. The kitchen is fitted with a range of modern units, Granite worktops and features a gas hob with cooker hood and Granite splashback, integrated oven and grill, and an integrated dishwasher, along with space for a fridge freezer. There is ample room for a dining table, and double doors lead directly out to the garden. A useful storage cupboard is also located within the kitchen. The separate utility room provides space for a washing machine and tumble dryer, with side access to the driveway.

Upstairs, the first floor offers access to the loft and includes an airing cupboard. There are four well proportioned bedrooms, with built-in wardrobes to bedrooms one, two and three. The main bedroom benefits from an en suite, while the remaining bedrooms are served by a family bathroom fitted with a bath, wash hand basin, WC and separate shower cubicle.

Externally, the enclosed rear garden has been thoughtfully landscaped and features a patio area, lawn, built-in planters, and additional patio and gravelled seating areas with a pergola, creating an ideal space for outdoor relaxation and entertaining. There is also gated side access leading to the driveway and garage. The property further benefits from a garage with an up-and-over door, light, power and roof storage area, as well as a driveway providing parking for two cars. Additional features include an EV charger, two external double power points, outside lighting and water tap.

  • NEW AND POPULAR KINGSBROOK DEVELOPMENT
  • FOUR BEDROOM DETACHED FAMILY HOME
  • OVERLOOKING A GREEN
  • LANDSCAPED REAR GARDEN
  • GARAGE AND DRIVEWAY
  • UTILITY AND DOWNSTAIRS CLOAKROOM
  • EN SUITE TO MAIN BEDROOM
  • CLOSE TO SCHOOLS AND AMENITIES
Floorplan for Marsworth Drive, Kingsbrook, Aylesbury
EPC Graph for Marsworth Drive, Kingsbrook, Aylesbury
Similar Properties

Get an instant online valuation

Find out how much your property is worth