Broughton Avenue, Broughton, Aylesbury

Sold Subject to Contract £400,000 (Freehold)

3 2 2

LOCATION

Broughton estate is situated just over a mile from the town centre on the popular south side of Aylesbury. The estate has two schools, Broughton Infant and Junior, providing education up to secondary level and is within walking distance of the highly regarded Grammar and High Schools. There is good transport links towards London/M25, particularly on the A41 which can be accessed directly from the estate, but also from the nearby A413. There is a choice of mainline services into London Marylebone at Aylesbury and Stoke Mandeville Stations both of which are a couple of miles away. The location is ideal for families with several parks and playgrounds nearby. There is a parade of shops and nursery on the estate at Parton Road and a doctor’s surgery and petrol station close by.

ACCOMMODATION

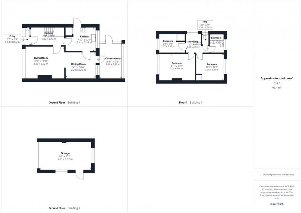
On entering the property, you are welcomed into a porch, which leads through to the main hallway, complete with stairs to the first floor and a useful storage cupboard. The ground floor features a bright and spacious living room, which flows through to the adjoining dining room, creating an ideal space for family living and entertaining. The kitchen offers space for appliances. The conservatory overlooks the garden and has a door leading directly outside.

Upstairs, the landing provides loft access and leads to three well-proportioned bedrooms. There is also a shower room and a separate WC.

Externally, the property enjoys an enclosed rear garden featuring a patio area, lawn, access to the garage and gated access to the front. The garage sits behind the driveway providing off-road parking. To the front, there is a lawned garden adding to the home’s kerb appeal.

This property offers great scope for improvement and is ideally positioned within a popular residential area close to local amenities, schools and transport links.

  • LOCATED IN THE POPULAR BROUGHTON AREA
  • NO UPPER CHAIN
  • REQUIRES MODERNISATION
  • THREE WELL PROPORTIONED BEDROOMS
  • SHOWER ROOM AND SEPARATE WC
  • FRONT GARDEN WITH DRIVEWAY
  • LIVING ROOM OPENING INTO DINING ROOM
  • ENCLOSED REAR GARDEN
  • GARAGE
  • CLOSE TO SCHOOLS AND AMENITIES
Floorplan for Broughton Avenue, Broughton, Aylesbury
EPC Graph for Broughton Avenue, Broughton, Aylesbury
Similar Properties

Get an instant online valuation

Find out how much your property is worth