Cotswold Green, Elmhurst, Aylesbury

Sold Subject to Contract £350,000 (Freehold)

3 1 2

LOCATION

Aylesbury town centre is within walking distance, with an excellent range of shopping and recreational facilities, numerous restaurants and a main line rail station (Marylebone 1 hour). Aylesbury is particularly well served by three of the area’s top performing Grammar Schools- Aylesbury Grammar School for boys, High School for Girls and Sir Henry Floyd (mixed). Inspired by the rolling Chiltern Hills, the Aylesbury Waterside Theatre provides an entertaining evening out at the heart of the Canalside and beautiful outdoor purpose-built restaurant and entertainment.

ACCOMMODATION

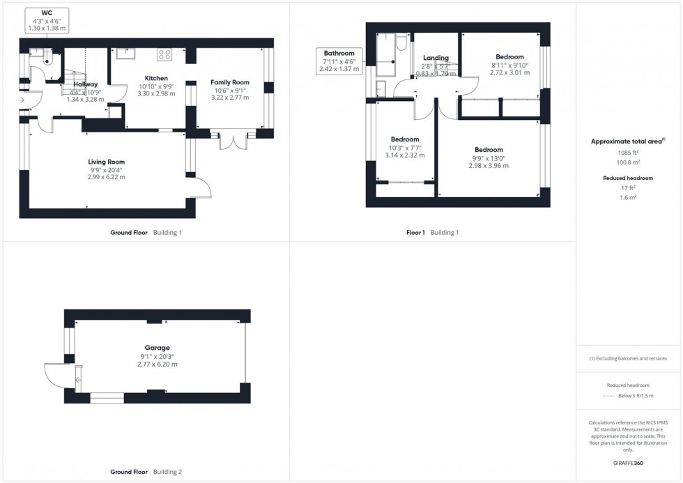
The property is entered via a welcoming entrance hall which provides access to a downstairs cloakroom, and stairs rising to the first floor. The dual-aspect lounge/diner, offers an abundance of natural light and ample space for both relaxing and entertaining, with a door opening directly onto the rear garden. The kitchen is fitted with a range of units and benefits from an integrated fridge and dishwasher, with space for a cooker and washing machine. The kitchen leads through to a versatile family room, which could be used as a playroom, home office, or additional sitting room, and features doors opening onto the garden.

On the first floor, there are three bedrooms, with fitted wardrobes to bedrooms two and three. The family bathroom completes the accommodation.

Externally, the enclosed rear garden is designed for low maintenance, featuring a patio area, artificial grass and a garden shed. A door provides direct access to the garage, which is equipped with light and power, and there is also gated rear access.

This property offers flexible living space and practical features throughout, making it an ideal choice for families and those seeking a convenient and well-connected location.

  • *** SOLD ***
  • THREE BEDROOM TERRACED HOUSE
  • CLOSE TO SCHOOLS AND LOCAL AMENITIES
  • GARAGE WITH LIGHT AND POWER
  • DOWNSTAIRS CLOAKROOM
  • DUAL ASPECT LOUNGE / DINER
  • LOW MAINTENANCE GARDEN
  • EASY ACCESS TO TOWN CENTRE
Floorplan for Cotswold Green, Elmhurst, Aylesbury
EPC Graph for Cotswold Green, Elmhurst, Aylesbury
Similar Properties

Get an instant online valuation

Find out how much your property is worth