Bramley Road, Berryfields, Aylesbury

For Sale £415,000 (Freehold)

3 2 1

LOCATION

Berryfields is a modern development situated on the northern outskirts of Aylesbury surrounded by open countryside. The development benefits from good transport links by road towards Bicester/M40 and back to the town centre. The development is home to Aylesbury Parkway Station which offers mainline services into London Marylebone in just under an hour. There is a parade of shops and a Miller and Carter restaurant on the development as well as a secondary school and two primary schools.

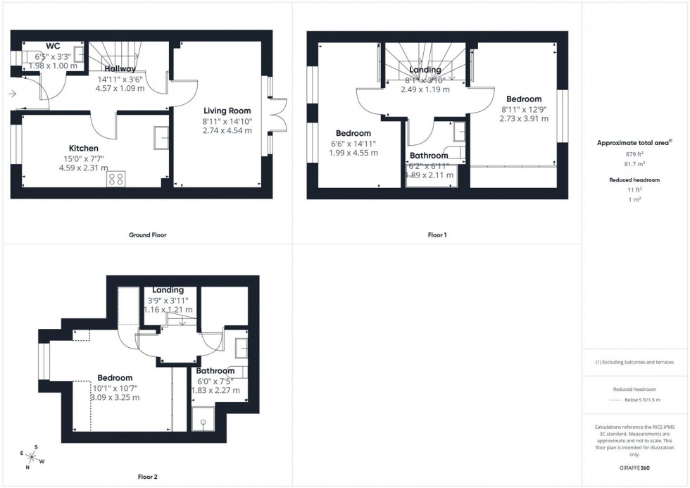
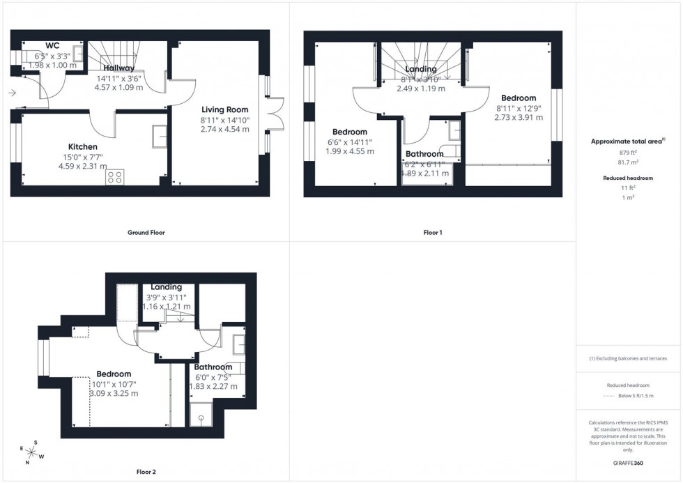
ACCOMMODATION

Upon entering, the entrance hall gives access to the principal ground-floor rooms and features stairs to the first floor, a useful storage cupboard and a convenient cloakroom. The kitchen is well-appointed, offering space for a cooker, fridge, dishwasher and washing machine, along with room for a small dining set. To the rear, the living room provides a bright and welcoming space, benefitting from double doors that open directly onto the garden.

The first floor comprises two double bedrooms along with the family bathroom, fitted with a white suite.

The top floor is dedicated to the master bedroom, complete with built-in wardrobes and a shower room, which also includes its own storage cupboard.

Outside, the property enjoys an enclosed rear garden, featuring a patio area, lawn, garden shed and side gate access. To the side, there is driveway parking for two cars, adding to the convenience this home offers.

  • BERRYFIELDS
  • THREE BEDROOM SEMI-DETACHED TOWN HOUSE
  • NO UPPER CHAIN
  • DRIVEWAY PARKING FOR TWO CARS
  • TOP FLOOR MASTER BEDROOM
  • ENCLOSED REAR GARDEN
  • WALKING DISTANCE TO SCHOOLS
  • DOWNSTAIRS CLOAKROOM
Floorplan for Bramley Road, Berryfields, Aylesbury
Similar Properties

Get an instant online valuation

Find out how much your property is worth