Herman Street, Berryfields, Aylesbury

Sold Subject to Contract £400,000 (Freehold)

3 2 1

LOCATION

Berryfields is a modern development situated on the northern outskirts of Aylesbury surrounded by open countryside. The development benefits from good transport links by road towards Bicester/M40 and back to the town centre. The development is home to Aylesbury Parkway Station which offers mainline services into London Marylebone in just under an hour. There is a parade of shops and a Miller and Carter restaurant on the development as well as a secondary school and two primary schools, Berryfields C Of E Primary and Green Ridge Primary Academy.

ACCOMMODATION

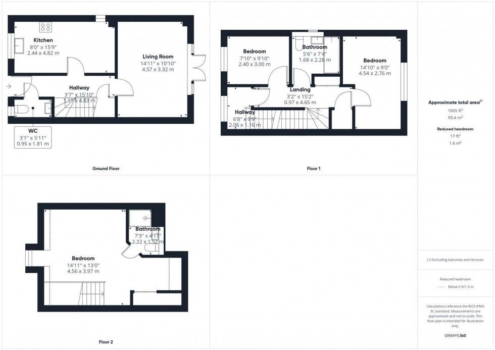
Upon entering, you are welcomed into an entrance hall featuring a cloakroom, useful under-stairs storage cupboard and stairs leading to the first floor. The modern kitchen/diner is well equipped with integrated appliances including a fridge/freezer, washing machine, dishwasher, oven and grill, inset gas hob and cooker hood, along with space for a dining table. To the rear, the living room provides a comfortable space for relaxation and benefits from double doors opening onto the garden.

The first-floor landing leads to two well proportioned bedrooms and a contemporary family bathroom, as well as airing cupboards offering practical storage.

The top floor is dedicated entirely to the generous master bedroom, complete with built-in wardrobes, en suite shower room, eaves storage and loft access.

Outside, the enclosed rear garden is designed for low maintenance and features a patio area, pergola, garden shed and artificial lawn. The property further benefits from three allocated parking spaces located to the side.

  • POPULAR BERRYFIELDS DEVELOPMENT
  • THREE BEDROOM END-OF-TERRACE HOUSE
  • SET OVER THREE FLOORS
  • MODERN KITCHEN/DINER
  • CLOSE TO SCHOOLS AND AMENITIES
  • LOW MAINTENANCE GARDEN
  • THREE ALLOCATED PARKING SPACES
  • TOP FLOOR DEDICATED TO MASTER BEDROOM
Floorplan for Herman Street, Berryfields, Aylesbury
EPC Graph for Herman Street, Berryfields, Aylesbury
Similar Property

Get an instant online valuation

Find out how much your property is worth