Queens Park, Aylesbury, Buckinghamshire

For Sale £145,000 (Leasehold)

1 1 1

LOCATION

Aylesbury town centre is within walking distance, with an excellent range of shopping and recreational facilities, numerous restaurants and a main line rail station (Marylebone 1 hour). Aylesbury is particularly well served by three of the area’s top performing Grammar Schools- Aylesbury Grammar School for boys, High School for Girls and Sir Henry Floyd (mixed). Inspired by the rolling Chiltern Hills, the Aylesbury Waterside Theatre provides an entertaining evening out at the heart of the Canalside and beautiful outdoor purpose-built restaurant and entertainment. Short walking distance to Aquavale swimming & fitness centre, Tesco superstore & the mainline line rail station (Marylebone 1 hour) & there is good access by road onto the A41 leading towards London/M25.

ACCOMMODATION

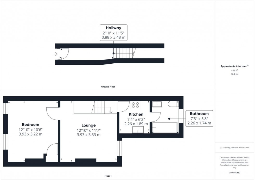
Accessed via its own private entrance, stairs lead up to the first floor and directly into a spacious lounge featuring a charming fireplace, creating a warm and welcoming living space.

The double bedroom benefits from a built-in wardrobe, providing ample storage. The kitchen is fitted with an inset gas hob, oven and cooker hood, with additional space and plumbing for a fridge and washing machine.

The bathroom comprises a WC, hand wash basin and a bathtub with shower over.

This property would make an ideal first time purchase or investment opportunity, offering comfortable living in a highly convenient location with no upper chain.

NOTES

LEASE INFO - 99 year lease with 75 years left. No Ground Rent or Service Charges.

  • ONE BEDROOM FIRST FLOOR MAISONETTE
  • OFFERED WITH NO UPPER CHAIN
  • WALKING DISTANCE OF TOWN CENTRE, STATION & TESCO SUPERSTORE
  • DOUBLE BEDROOM WITH BUILT-IN WARDROBE
  • SPACIOUS LOUNGE
  • IDEAL FOR FIRST-TIME BUYERS OR INVESTORS
Floorplan for Queens Park, Aylesbury, Buckinghamshire
EPC Graph for Queens Park, Aylesbury, Buckinghamshire
Similar Properties

Get an instant online valuation

Find out how much your property is worth