Walton Street, Aylesbury, Buckinghamshire

For Sale £175,000 (Leasehold)

1 1 1

LOCATION

Aylesbury town centre is within walking distance, with an excellent range of shopping and recreational facilities, numerous restaurants and a main line rail station (Marylebone 1 hour). Aylesbury is particularly well served by three of the area’s top performing Grammar Schools- Aylesbury Grammar School for boys, High School for Girls and Sir Henry Floyd (mixed). Inspired by the rolling Chiltern Hills, the Aylesbury Waterside Theatre provides an entertaining evening out at the heart of the Canalside and beautiful outdoor purpose-built restaurant and entertainment. Short walking distance to Aquavale swimming & fitness centre, Tesco superstore & the mainline line rail station (Marylebone 1 hour) & there is good access by road onto the A41 leading towards London/M25.

ACCOMMODATION

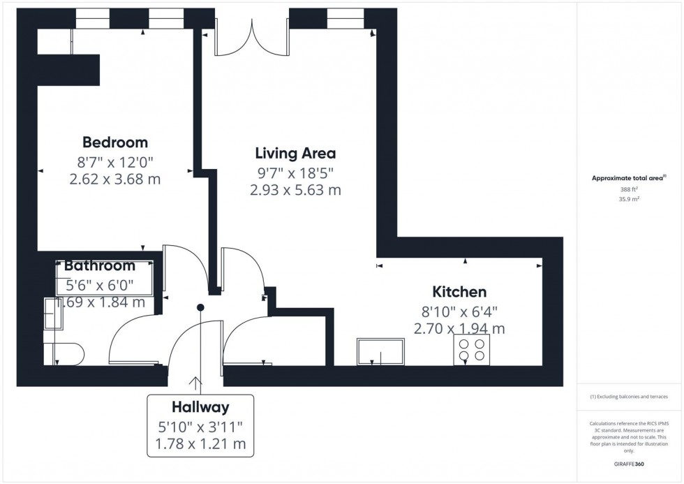
The property is well presented throughout and comprises an entrance hall with useful storage cupboard, a modern bathroom featuring a bathtub with shower over, wash basin with storage, WC and heated towel rail.

The bedroom includes a built-in storage cupboard, while the bright open-plan living and kitchen area provides an ideal space for relaxing or entertaining. The contemporary kitchen is fitted with an inset electric hob, oven and cooker hood, along with integrated appliances including a washing machine, dishwasher and fridge/freezer. The living area offers ample space for furniture and doors leading to a private balcony.

Additional benefits include lift access, an allocated parking space within a secure car park with remote-control access, and access to a communal rooftop terrace.

This superb flat would make an excellent first home or investment, combining style, convenience and security in a central location.

NOTE

LEASE INFO - 125 year lease with 115 years left. Ground Rent £300 pa. Service Charge £1066.14 pa.

  • ONE BEDROOM SECOND FLOOR FLAT
  • CENTRAL LOCATION
  • WELL PRESENTED THROUGHOUT
  • BRIGHT OPEN PLAN LIVING/KITCHEN AREA
  • ALLOCATED PARKING SPACE IN SECURE CAR PARK
  • COMMUNAL ROOFTOP TERRACE
  • MODERN BATHROOM
  • KITCHEN WITH INTEGRATED APPLIANCES
Floorplan for Walton Street, Aylesbury, Buckinghamshire
EPC Graph for Walton Street, Aylesbury, Buckinghamshire
Similar Properties

Get an instant online valuation

Find out how much your property is worth