Edge Street, Aylesbury, Buckinghamshire

For Sale £400,000 (Freehold)

3 2 2

LOCATION

Aylesbury town centre is within walking distance, with an excellent range of shopping and recreational facilities, numerous restaurants and a main line rail station (Marylebone 1 hour). Aylesbury is particularly well served by three of the area
• s top performing Grammar Schools- Aylesbury Grammar School for boys, High School for Girls and Sir Henry Floyd (mixed). Inspired by the rolling Chiltern Hills, the Aylesbury Waterside Theatre provides an entertaining evening out at the heart of the Canalside and beautiful outdoor purpose-built restaurant and entertainment. Short walking distance to Sainsbury
• s superstore & the mainline line rail station (Marylebone 1 hour) & there is good access by road onto the A41 leading towards London/M25.

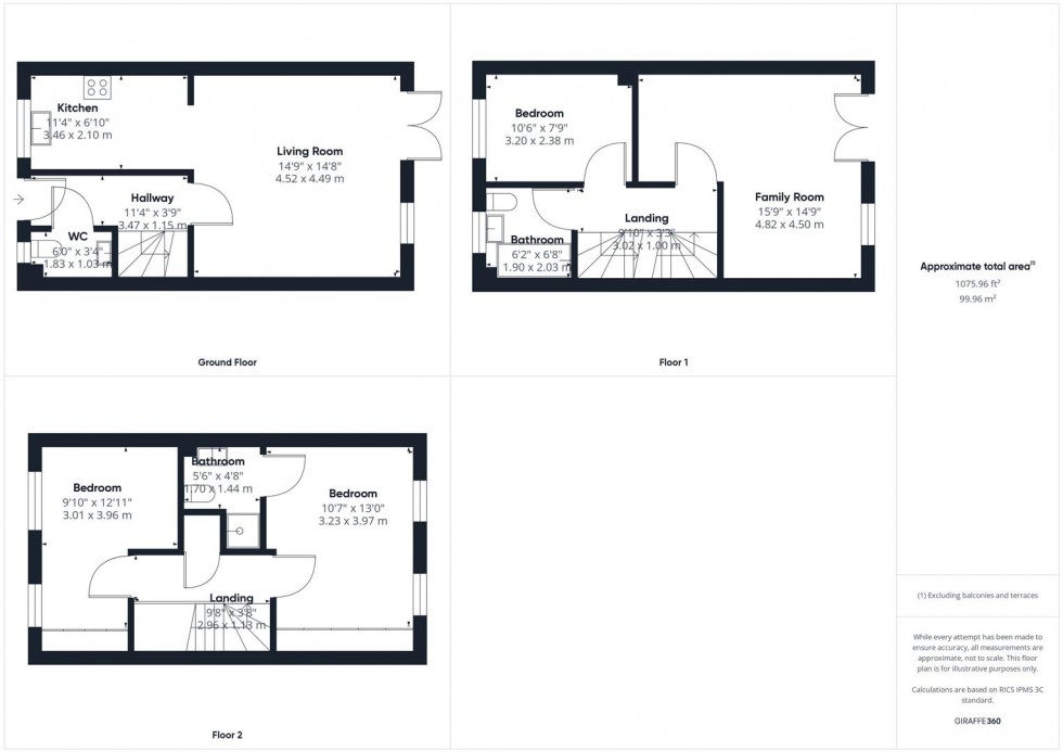
ACCOMMODATION

ENTRANCE HALL - Doors to the WC and living room. Stairs rise to the first floor landing.
WC - Hand wash basin, WC, radiator.
LIVING ROOM - Bright and airy room with doors leading out to the garden and space for a sofa and dining set.
KITCHEN - Range of wall and base units with worktops, breakfast bar, inset gas hob, oven, splashback and extractor, integrated fridge/freezer, space for washing machine.
FIRST FLOOR LANDING - Doors to the family room, bedroom three and bathroom. Stairs to the second floor.
FAMILY ROOM - L shaped room with doors to the Juliet balcony and space for a range of furniture.
BEDROOM THREE - Large single room.
BATHROOM - WC, hand wash basin, bathtub with mixer shower and screen, tiling to splash sensitive areas, heated towel rail.
SECOND FLOOR LANDING - Doors to bedrooms one and two, airing cupboard and loft access.
BEDROOM ONE AND EN SUITE - Double room with built in wardrobes. En suite with shower cubicle, hand wash basin, WC and heated towel rail.
BEDROOM TWO - Double room with built in wardrobes.

OUTSIDE

REAR GARDEN - Fully enclosed rear garden with paved patio areas, artificial lawn laid, garden shed and gated access.
PARKING - Off road parking for several cars.

AGENTS NOTE

New Valiant water tank and boiler installed in March 2024 with 10 year guarantee.
Artificial grass has 8 years left on the warranty.
Potential for extension STPP.

  • THREE BEDROOM HOUSE
  • SET OVER THREE FLOORS
  • WALKING DISTANCE TO TRAIN STATION
  • EN SUITE, CLOAKROOM AND FAMILY BATHROOM
  • IMMACULATE ORDER THROUGHOUT
  • LOW MAINTENANCE GARDEN
  • CLOSE TO AMENITIES AND SCHOOLS
  • PARKING FOR SEVERAL CARS
  • TWO RECEPTION ROOMS
  • IDEAL FAMILY HOME
Floorplan for Edge Street, Aylesbury, Buckinghamshire
Similar Properties

Get an instant online valuation

Find out how much your property is worth