Austen Place, Haydon Hill, Aylesbury

For Sale £425,000 (Freehold)

3 1 1

LOCATION

Haydon Hill is an estate constructed in the late 70’s/early 80’s to the north west of Aylesbury’s Town Centre. The development consists mainly of 2, 3 and 4 bed houses and backs onto fields at the rear offering good opportunity for Dog-walking. The estate is within walking distance of the Aylesbury Parkway Train Station which offers mainline services into London Marylebone. There is good access by road towards Bicester and the M40 Junction 9. There are many amenities within walking distance including a Tesco Express, Doctors Surgery, Pub/Restaurant and Primary and Secondary Schooling.

ACCOMMODATION

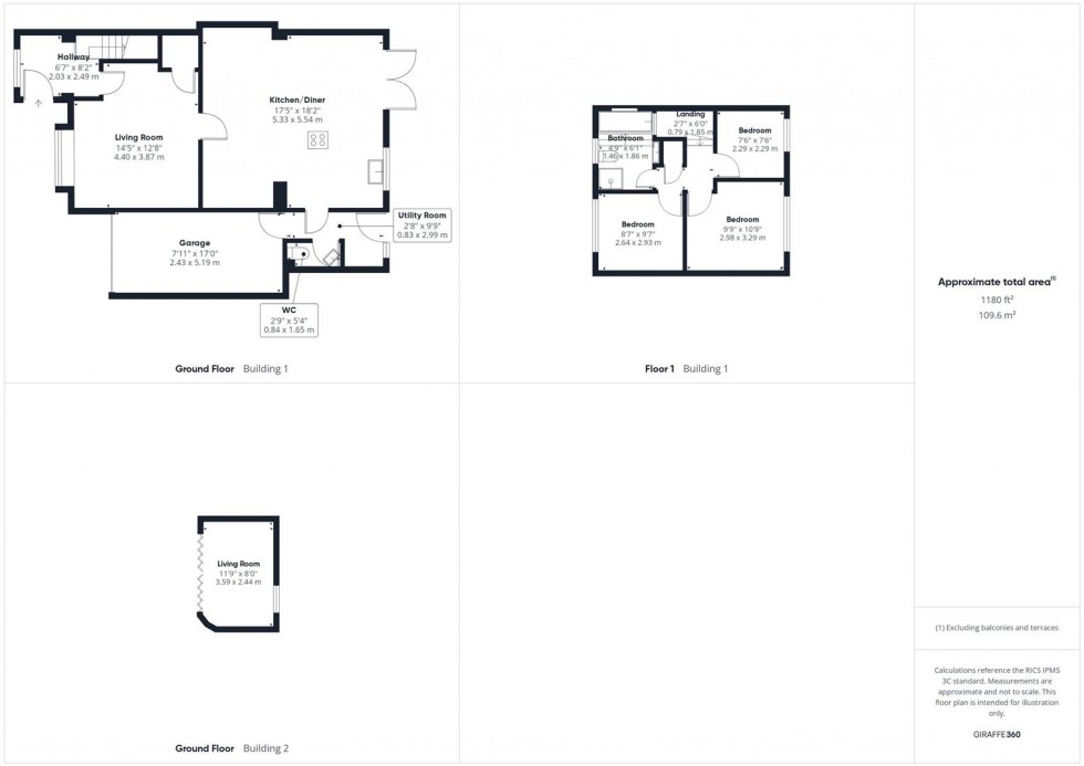
The accommodation comprises an entrance hall with stairs rising to the first floor and access to the main living spaces. The living room features built-in storage units and an understairs cupboard, providing ample space for everyday organisation. To the rear, the spacious kitchen/diner offers plenty of room for a range of appliances, with doors opening directly onto the garden – perfect for family living or entertaining.

A separate utility room provides additional space for a washing machine and leads through to both a cloakroom and the integral garage, enhancing convenience and functionality. Amtico flooring laid to the kitchen, utility, cloakroom and bathroom.

Upstairs, the first floor includes three well proportioned bedrooms and access to the loft is fully boarded for extra storage. The master bedroom benefits from fitted wardrobes and drawers. The family bathroom is fully tiled and fitted with a standalone bathtub, separate shower cubicle, WC, wash basin and heated towel rail.

Outside, the rear garden is mainly laid to lawn with a side gate for access. A garden room with light, power and air conditioning unit offers excellent versatility—ideal as a home office, studio, or hobby space—and includes additional storage to the side. To the front, the property benefits from a garage and driveway, providing off-road parking.

NOTE

First floor wrap around extension has had planning permission approved.

  • HAYDON HILL
  • THREE BEDROOM SEMI DETACHED HOUSE
  • GARAGE AND DRIVEWAY
  • GARDEN ROOM WITH LIGHT AND POWER
  • CLOSE TO LOCAL AMENITIES
  • MODERN FAMILY BATHROOM
  • UTILITY AND CLOAKROOM
  • LARGE KITCHEN/DINER
  • SOLID WOOD FLOORING
Floorplan for Austen Place, Haydon Hill, Aylesbury
EPC Graph for Austen Place, Haydon Hill, Aylesbury
Similar Properties

Get an instant online valuation

Find out how much your property is worth