Avocet Way, Watermead, Aylesbury

For Sale £425,000 (Freehold)

3 1 1

LOCATION

Watermead – situated on the northern outskirts of the town, continues to be as popular today as it was when the very first homes were released in the late 1980’s. With two magnificent lakes, a quaint village centre and open countryside on the doorstep a more picturesque setting would be hard to imagine. The location offers convenient access by road towards the M25 and M40 as well as being a short drive to Aylesbury Parkway Train Station offering mainline services to London Marylebone.

ACCOMMODATION

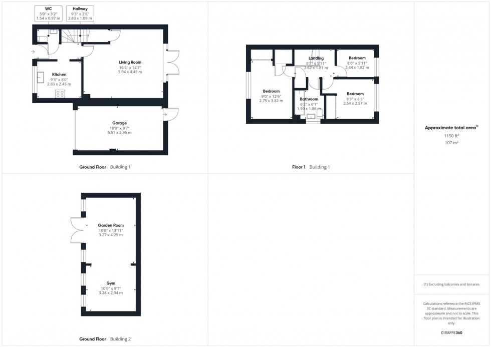
The property is approached via an entrance hall with stairs rising to the first floor and access to a convenient cloakroom. To the front of the property is a fitted kitchen, featuring an inset electric hob, oven and grill, along with an integrated fridge freezer and washer/dryer, providing a practical and modern cooking space.

To the rear, the living room offers a comfortable setting, with a useful storage cupboard and double doors opening out onto the rear garden, creating a seamless connection between indoor and outdoor living.

On the first floor, there is loft access and a useful airing cupboard, along with three bedrooms. Bedrooms one and two benefit from built-in wardrobes, while the third bedroom offers flexibility as a single room, home office or nursery. The family bathroom completes the first floor accommodation.

Externally, the property enjoys an enclosed rear garden with a patio area ideal for outdoor dining, a lawned section, and a substantial garden room with light and power, suitable for a home office, gym or additional reception space. Further benefits include a garage and driveway providing off-road parking.

  • WATERMEAD DEVELOPMENT
  • THREE BEDROOM HOUSE
  • ENCLOSED REAR GARDEN
  • GARAGE AND DRIVEWAY
  • LARGE GARDEN ROOM WITH LIGHT & POWER
  • DOWNSTAIRS CLOAKROOM
  • BUILT-IN WARDROBES TO BEDROOMS ONE & TWO
  • MODERN KITCHEN
Floorplan for Avocet Way, Watermead, Aylesbury
Similar Properties

Get an instant online valuation

Find out how much your property is worth