Bicester Road, Aylesbury, Buckinghamshire

Sold Subject to Contract £315,000 (Freehold)

3 1 2

LOCATION

Aylesbury town centre is within walking distance, with an excellent range of shopping and recreational facilities, numerous restaurants and a main line rail station (Marylebone 1 hour). Aylesbury is particularly well served by three of the area’s top performing Grammar Schools- Aylesbury Grammar School for boys, High School for Girls and Sir Henry Floyd (mixed). Inspired by the rolling Chiltern Hills, the Aylesbury Waterside Theatre provides an entertaining evening out at the heart of the Canalside and beautiful outdoor purpose-built restaurant and entertainment. Short walking distance to Aquavale swimming & fitness centre, Tesco superstore & the mainline line rail station (Marylebone 1 hour) & there is good access by road onto the A41 leading towards London/M25.

ACCOMMODATION

Offered to the market with no upper chain, the property provides generous living accommodation and versatile spaces, making it an excellent choice for families, first-time buyers or investors.

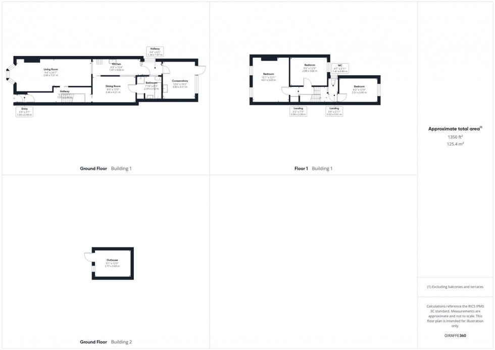
On the ground floor, the property opens with an entrance hall with stairs leading to the first floor, flowing into a spacious living room and a separate dining room. The kitchen offers ample storage with space for appliances, while a downstairs bathroom provides convenience and features a shower cubicle, bathtub, WC and wash basin. To the rear, a conservatory with kitchenette adds extra flexibility for dining or utility use.

Upstairs, the home offers three bedrooms along with a convenient WC.

Externally, the property benefits from a fully paved rear garden, designed for low maintenance, with an outbuilding fitted with light and power—ideal for use as a workshop, home office or additional storage.

  • CENTRAL LOCATION
  • THREE BEDROOM HOUSE
  • MULTIPLE RECEPTION ROOMS
  • FULLY PAVED GARDEN
  • NO UPPER CHAIN
  • WALKING DISTANCE TO TOWN CENTRE AND TRAIN STATION
  • CONSERVATORY WITH KITCHENETTE
  • DOWNSTAIRS BATHROOM
  • FIRST FLOOR WC
  • OUTBUILDING WITH LIGHT AND POWER
Floorplan for Bicester Road, Aylesbury, Buckinghamshire
Similar Properties

Get an instant online valuation

Find out how much your property is worth