Wedgewood Street, Fairford Leys, Aylesbury

For Sale £375,000 (Freehold)

3 2 2

LOCATION

Fairford Leys is a popular development situated in the south-west of Aylesbury. The estate has its own village square offering a range of shops, restaurants, nursery, church, community centre and health club. The development is served by a frequent bus service providing a quick link to Aylesbury town centre and railway station. There is a local school, St Marys, providing education up to secondary level. Aylesbury town itself offers a comprehensive range of shopping and schooling facilities together with a mainline railway link to London (Marylebone) in approximately one hour.

ACCOMMODATION

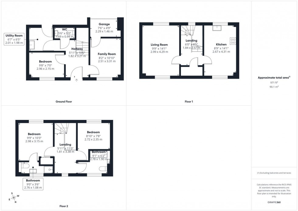
The property is entered via an entrance hall with stairs rising to the first floor. On the ground floor there is a bedroom, along with a versatile family room providing additional living space. A useful utility room offers space for a washing machine and has a door leading out to the rear garden, while a convenient WC completes the ground floor accommodation.

The first floor landing provides access to an airing cupboard and stairs rising to the second floor. The dual-aspect living room is bright and spacious, providing an excellent area for relaxing or entertaining. The modern kitchen is fitted with a range of units and features an inset gas hob with oven and extractor over, integrated fridge and dishwasher, and space for a dining table and chairs.

On the top floor there is access to the loft and two further bedrooms. The main bedroom benefits from its own en-suite shower room, while the second bedroom is served by a family bathroom fitted with a bath, wash hand basin and WC.

Externally, the rear garden is mainly laid to grass and features built-in planters and a garden shed, providing a pleasant outdoor space. The property further benefits from a garage and driveway parking, with gated access.

  • POPULAR FAIRFORD LEYS DEVELOPMENT
  • THREE BEDROOM SEMI-DETACHED HOUSE
  • SET OVER THREE FLOORS
  • REAR GARDEN, GARAGE & DRIVEWAY
  • UTILITY & DOWNSTAIRS WC
  • EN SUITE TO MAIN BEDROOM
  • WELL PRESENTED THROUGHOUT
  • WALKING DISTANCE TO AMENITIES
  • FIRST FLOOR KITCHEN & LIVING ROOM
  • VERSATILE FAMILY ROOM
Floorplan for Wedgewood Street, Fairford Leys, Aylesbury
EPC Graph for Wedgewood Street, Fairford Leys, Aylesbury
Similar Properties

Get an instant online valuation

Find out how much your property is worth