Provis Wharf, Canalside, Aylesbury

For Sale £475,000 (Freehold)

4 2 2

LOCATION

Canalside is a recently constructed private housing development situated to the southeast of the town in a lovely position siding onto the Aylesbury Arm of the Grand Union Canal. This unique location offers new owners the benefits of a town location coupled with countryside walks along the Canal Towpath and nearby Broughton Nature Reserve. There is good access by road onto the nearby A41 leading towards London/M25 and in the other direction towards Milton Keynes/Northbound M1 on the A418.

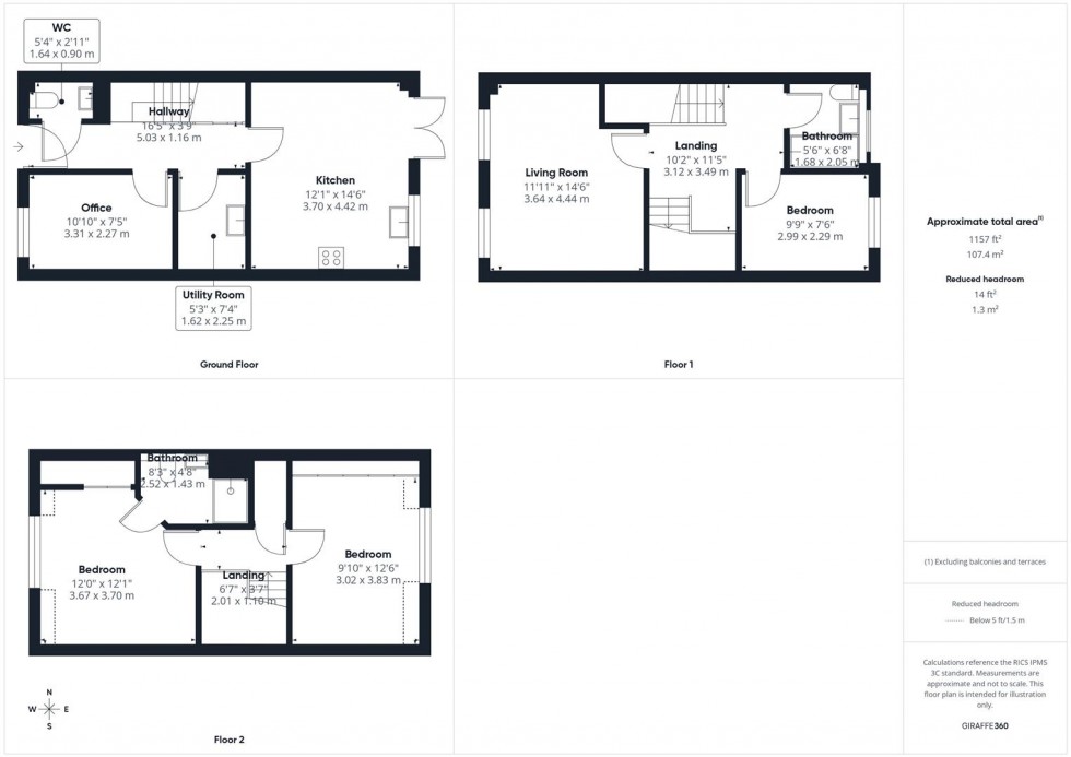
ACCOMMODATION

The property is approached via a gated front garden, leading to the front door and into a welcoming entrance hall with stairs rising to the upper floors. The ground floor provides excellent flexibility, featuring a cloakroom, a useful utility room with space for a washing machine and tumble dryer, and a versatile room which can be used as a home office or fourth bedroom. To the rear, the contemporary kitchen/diner is well-equipped with an inset gas hob, integrated oven and grill, dishwasher, and fridge freezer, along with ample space for a dining table and chairs. Double doors open directly onto the rear garden.

On the first floor, there is a bright and spacious living room, a bedroom and a modern family bathroom.

The second floor hosts two further bedrooms, both benefiting from built-in wardrobes, with the main bedroom enjoying the added luxury of an en suite shower room. An airing cupboard is also conveniently located on this floor.

Externally, the rear garden has been designed for low maintenance and features a combination of patio and gravelled areas, complemented by planted borders and a garden shed. The property further benefits from two allocated parking spaces.

  • SOUGHT AFTER CANALSIDE DEVELOPMENT
  • THREE/FOUR BEDROOM SEMI-DETACHED HOME
  • FLEXIBLE AND VERSATILE LIVING ACCOMMODATION
  • FIRST FLOOR LIVING ROOM
  • LOW MAINTENANCE REAR GARDEN
  • TWO ALLOCATED PARKING SPACES
  • EN SUITE TO MAIN BEDROOM
  • SET OVER THREE FLOORS
  • CLOAKROOM AND UTILITY
  • GATED FRONT GARDEN
Floorplan for Provis Wharf, Canalside, Aylesbury
Similar Properties

Get an instant online valuation

Find out how much your property is worth