Goldcrest, Watermead, Aylesbury

For Sale £865,000 (Freehold)

5 2 2

LOCATION

Watermead – situated on the northern outskirts of the town, continues to be as popular today as it was when the very first homes were released in the late 1980’s. With two magnificent lakes, a quaint village centre and open countryside on the doorstep a more picturesque setting would be hard to imagine. The location offers convenient access by road towards the M25 and M40 as well as being a short drive to Aylesbury Parkway Train Station offering mainline services to London Marylebone.

ACCOMMODATION

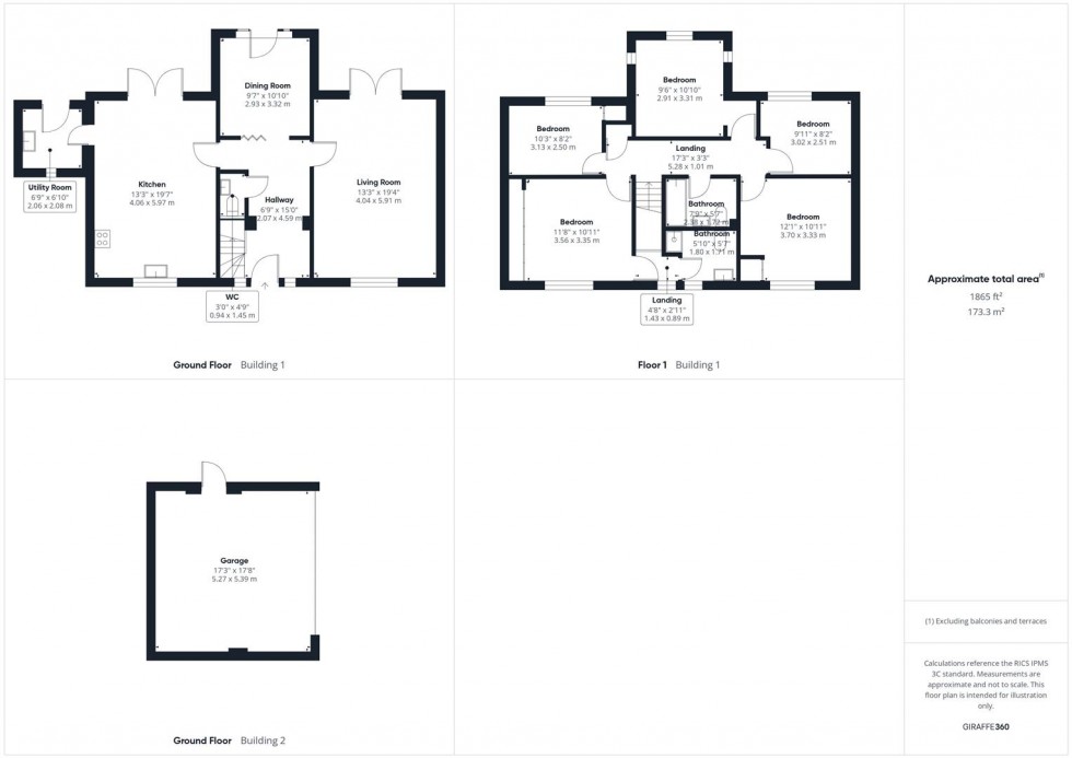
The property is entered via a spacious and welcoming entrance hall, complete with stairs rising to the first floor and a convenient downstairs cloakroom. The ground floor accommodation is both generous and versatile, featuring a bright dual-aspect living room with a charming feature fireplace and double doors opening onto the rear garden, creating an ideal space for both relaxing and entertaining.

The separate dining room also benefits from direct access to the garden, perfect for formal dining or family gatherings. The heart of the home is the large, well-appointed kitchen, fitted with an inset gas hob, integrated oven, grill and microwave, along with an integrated fridge and dishwasher. There is ample space for a dining table, and double doors lead out to the garden, enhancing the indoor-outdoor flow. A separate utility room provides additional practicality, with space for a washing machine and tumble dryer.

Upstairs, the first floor landing offers access to the loft and includes an airing cupboard for additional storage. There are five well-proportioned bedrooms, with the main bedroom benefitting from built-in wardrobes, fitted storage units, and a private en suite shower room. The remaining bedrooms are served by a family bathroom.

Externally, the rear garden is a standout feature of the home, backing onto open fields and providing a peaceful and scenic backdrop. The garden is mainly laid to lawn with a patio area ideal for outdoor dining, along with a garden shed for storage. To the front, the property offers a double garage and a large driveway, providing ample off-road parking for multiple vehicles.

This superb home combines spacious living, a desirable location, and beautiful surroundings, making it an ideal choice for growing families.

  • IMPRESSIVE FIVE BEDROOM DETACHED HOME
  • SOUGHT AFTER LOCATION
  • ATTRACTIVE OUTLOOK
  • MULTIPLE RECEPTION ROOMS
  • UTILITY & CLOAKROOM
  • DOUBLE GARAGE & LARGE DRIVEWAY
  • FIVE WELL PROPORTIONED BEDROOMS
  • EN SUITE TO MAIN BEDROOM
  • GARDEN BACKS DIRECTLY ONTO OPEN FIELDS
  • LARGE KITCHEN WITH INTEGRATED APPLIANCES
Floorplan for Goldcrest, Watermead, Aylesbury
EPC Graph for Goldcrest, Watermead, Aylesbury

Get an instant online valuation

Find out how much your property is worth