Fremantle Road, Southcourt, Aylesbury

For Sale £360,000 (Freehold)

3 1 1

LOCATION

A family-based estate, very well established with some parts dating back to the 1930’s. The area offers shopping facilities in a number of locations within the estate as well as fast food restaurants, religious centres, community halls and regular bus services reaching in and around the town. The new pedestrian bridge by the Railway Station links the heart of the town centre and Southcourt making all amenities very accessible by foot or cycle. There is a primary school and secondary school on the estate and the area forms part of the Aylesbury Grammar school catchment.

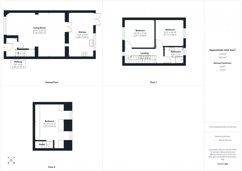
ACCOMMODATION

The property is entered via a welcoming entrance hall, complete with stairs to the upper floors and useful space for coats and shoes. The ground floor boasts a spacious living room, offering ample room for a variety of furniture arrangements, along with a handy understairs storage cupboard.

To the rear, the kitchen is fitted with an inset gas hob and oven, with additional space for a fridge freezer, washing machine and tumble dryer. There is also room for a dining table, creating a sociable kitchen/diner. Doors open directly onto the rear garden, allowing for easy indoor-outdoor living.

The first floor comprises two double bedrooms and a modern shower room. Stairs lead to the second floor, where you will find the impressive master bedroom, featuring skylights that allow for plenty of natural light, along with useful eaves storage.

Externally, the property benefits from an enclosed rear garden designed for low maintenance, with a combination of patio and decking areas. There is also a garden shed for additional storage. To the front, the property offers the convenience of driveway parking.

  • POPULAR SOUTHSIDE LOCATION
  • THREE BEDROOM TERRACED HOME
  • SET OVER THREE FLOORS
  • SPACIOUS LIVING ROOM
  • DRIVEWAY PARKING TO THE FRONT
  • MODERN SHOWER ROOM
  • TWO DOUBLE BEDROOMS ON THE FIRST FLOOR
  • SECOND FLOOR MASTER BEDROOM
  • CLOSE TO LOCAL SCHOOLS
  • LOW MAINTENANCE GARDEN
Floorplan for Fremantle Road, Southcourt, Aylesbury
EPC Graph for Fremantle Road, Southcourt, Aylesbury
Similar Properties

Get an instant online valuation

Find out how much your property is worth