Whitehead Way, Lavender Grange, Aylesbury

For Sale £450,000 (Freehold)

4 2 1

LOCATION

Situated to the south of Aylesbury’s town centre and within short walking distance of Stoke Mandeville Hospital. The estate is just over a mile walk to the town centre and train station and benefits from several amenities close by including a sport centre/gym, convenience store, take away and sports/social club with squash courts. The estate is situated within the Aylesbury Grammar School Catchment area for secondary education. At primary level the estate falls into the catchment area for William Harding Combined school.

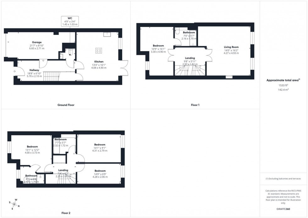
ACCOMMODATION

The ground floor welcomes you with a spacious entrance hall featuring stairs rising to the first floor and internal access to the integral garage. There is also a convenient cloakroom. To the rear, the kitchen/diner is fitted with a range of units and complemented by a central island with inset electric hob and cooker hood. Integrated appliances include a double oven, fridge freezer, washing machine and dishwasher. The space comfortably accommodates a dining table and benefits from a useful storage cupboard, with doors opening directly onto the rear garden.

On the first floor, the landing provides access to a bright and comfortable living room, complete with a feature fireplace, creating a perfect space for relaxation. Also on this level is a generously sized bedroom with its own en suite bathroom.

The second floor offers further accommodation, including three further bedrooms, one of which benefits from an additional en suite. There is also a family bathroom, along with an airing cupboard and access to the loft space from the landing.

Externally, the property enjoys an enclosed rear garden featuring a patio area, lawn, established shrubs, and a garden shed, providing an ideal setting for outdoor entertaining. To the front, there is a driveway offering off-road parking for one vehicle, leading to the integral garage which is equipped with light and power.

  • FOUR BEDROOM TERRACED HOUSE
  • LAVENDER GRANGE LOCATION
  • SET OVER THREE FLOORS
  • NO UPPER CHAIN
  • KITCHEN/DINER WITH CENTRAL ISLAND
  • FIRST FLOOR LIVING ROOM
  • TWO EN SUITE BEDROOMS
  • ENCLOSED REAR GARDEN
  • GARAGE AND DRIVEWAY PARKING
  • CLOSE TO HOSPITAL
Floorplan for Whitehead Way, Lavender Grange, Aylesbury
EPC Graph for Whitehead Way, Lavender Grange, Aylesbury
Similar Properties

Get an instant online valuation

Find out how much your property is worth