Hughenden Green, Aylesbury

For Sale £309,950 (Freehold)

2 2 1

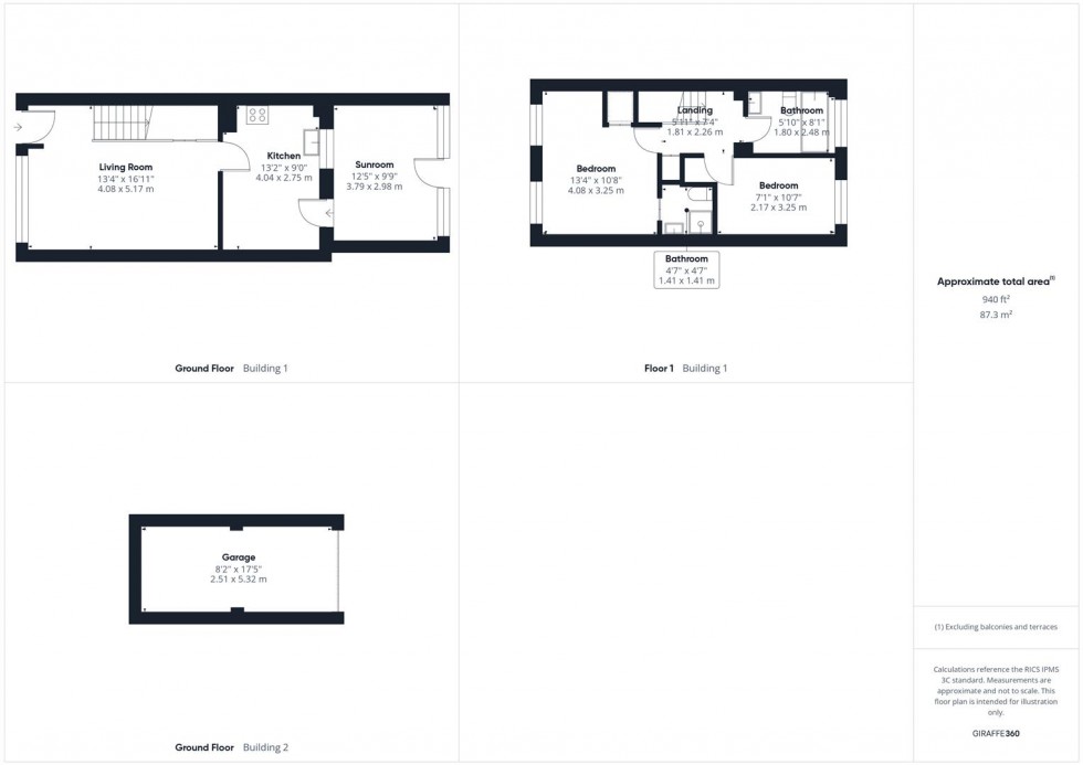
Located in a quiet, traffic free location on the southern outskirts of the town, this two-story freehold staggered terrace property boasts a generous total area of 939 square feet. It elegantly accommodates 2 spacious bedrooms, one ensuite and one well-appointed main bathroom, a contemporary kitchen, spacious enough for a table and chairs, and an inviting living room overlooking a small green. Further enhancing the ground floor is a delightful sunroom, which provides an abundance of natural light and an ideal space to relax. On the first floor, you'll find the bedrooms and bathrooms featuring baths and showers. Conveniently complimenting the living space is an additional garage that can be utilised as per the resident's needs and has parking to the front. The rear garden is low maintenance and has an access gate to the garage block. This property is conveniently situated within close proximity to significant local amenities such as Stoke Mandeville Hospital, Asda Supermarket, Stoke Mandeville Stadium and Gym and Stoke Mandeville Train Station. It also offers easy access to Stoke Mandeville Combined Primary School, and is within the Aylesbury Grammar School catchment, making it an attractive option for families. Enjoy the best of Aylesbury living with this comfortable and strategically located property.

  • TWO GENEROUS BEDROOMS
  • TRAFFIC FREE LOCATION
  • GARAGE WITH PARKING SPACE IN FRONT
  • SUNROOM/CONSERVATORY
  • SECLUDED REAR GARDEN WITH ACCESS GATE
  • GENEROUS LIVING ROOM
  • ENSUITE SHOWER ROOM AND MAIN BATHROOM
  • WALKING DISTANCE TO THE HOSPTIAL AND ASDA
  • WELL PRESENTED THROUGHOUT
  • NO UPPER CHAIN
Floorplan for Hughenden Green, Aylesbury
Similar Properties

Get an instant online valuation

Find out how much your property is worth