Dove Place, Watermead, Aylesbury

For Sale £160,000 (Leasehold)

1 1 1

LOCATION

Watermead – situated on the northern outskirts of the town, continues to be as popular today as it was when the very first homes were released in the late 1980’s. With two magnificent lakes, a quaint village centre and open countryside on the doorstep a more picturesque setting would be hard to imagine. The location offers convenient access by road towards the M25 and M40 as well as being a short drive to Aylesbury Parkway Train Station offering mainline services to London Marylebone.

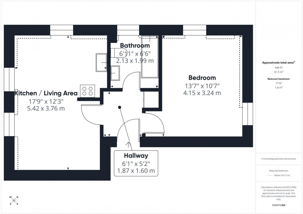
ACCOMMODATION

The property is accessed via a secure communal entrance and opens into a welcoming hallway, complete with an intercom system and a useful storage cupboard, providing practical space for coats and household items.

At the heart of the home is a bright and airy open-plan kitchen/living area, designed to maximise both space and natural light. The kitchen is fitted with an inset gas hob and oven, with additional space for a fridge and washing machine. The living area offers ample room for both lounge and dining furniture, creating a versatile and sociable environment.

The property boasts a dual aspect double bedroom, along with a bathroom suite comprising a bath with shower over, wash hand basin and WC.

Externally, the property benefits from one allocated parking space, adding further convenience.

NOTES

LEASE INFO - 125 year lease with 89 years left. Ground Rent £256 pa. Service Charge £1200 pa.

  • WATERMEAD DEVELOPMENT
  • ONE BEDROOM TOP FLOOR FLAT
  • NO UPPER CHAIN
  • ALLOCATED PARKING SPACE
  • SECURE COMMUNAL ENTRANCE
  • OPEN PLAN KITCHEN/LIVING AREA
  • DUAL ASPECT DOUBLE BEDROOM
  • IDEAL FOR FIRST-TIME BUYERS OR INVESTORS
Floorplan for Dove Place, Watermead, Aylesbury
EPC Graph for Dove Place, Watermead, Aylesbury
Similar Properties

Get an instant online valuation

Find out how much your property is worth