Paterson Road, Aylesbury, Buckinghamshire

For Sale £620,000 (Freehold)

7 4 3

LOCATION

A family-based estate, very well established with some parts dating back to the 1930’s. The area offers shopping facilities in a number of locations within the estate as well as fast food restaurants, religious centres, community halls and regular bus services reaching in and around the town. The new pedestrian bridge by the Railway Station links the heart of the town centre and Southcourt making all amenities very accessible by foot or cycle. There is a primary school and secondary school on the estate and the area forms part of the Aylesbury Grammar school catchment.

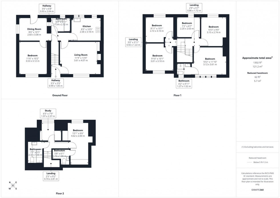
ACCOMMODATION

The property is approached via a gravelled driveway providing off-road parking for multiple vehicles. Upon entering, the entrance hall features stairs rising to the upper floors. The living room offers a comfortable space,, while the separate dining room is ideal for entertaining. The kitchen is fitted with a range of units and benefits from an inset gas hob and oven, with additional space for further appliances.

Also on the ground floor is a family bathroom and a bedroom, offering flexibility for guests or ground floor living.

The first floor comprises five bedrooms, providing ample space for family members or tenants, along with a convenient en suite serving one of the rooms.

The second floor hosts an additional bedroom complete with its own en suite bathroom. This level also includes a study, ideal for home working, and a further bathroom.

Externally, the rear garden is mainly laid to lawn with a patio seating area, established trees, and an outhouse offering useful storage or potential for further use.

  • EXTENDED SEVEN BEDROOM HOUSE
  • POPULAR RESIDENTIAL LOCATION
  • ACCOMMODATION SET OVER THREE FLOORS
  • GRAVELLED DRIVEWAY
  • DOWNSTAIRS BEDROOM AND BATHROOM
  • ENCLOSED REAR GARDEN
  • FOUR BATHROOMS
  • MULTIPLE RECEPTION ROOMS
Floorplan for Paterson Road, Aylesbury, Buckinghamshire

Get an instant online valuation

Find out how much your property is worth