Elize Close, Berryfields, Aylesbury

For Sale £650,000 (Freehold)

4 3 3

LOCATION

Berryfields is a modern development situated on the northern outskirts of Aylesbury surrounded by open countryside. The development benefits from good transport links by road towards Bicester/M40 and back to the town centre. The development is home to Aylesbury Parkway Station which offers mainline services into London Marylebone in just under an hour. There is a parade of shops and a Miller and Carter restaurant on the development as well as a secondary school and two primary schools.

ACCOMMODATION

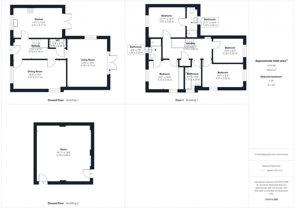
The property is entered via a welcoming entrance hall with stairs rising to the first floor and access to a useful cloakroom. The stunning, brand new high-specification kitchen, has been thoughtfully designed with an inset gas hob and cooker hood, integrated oven and microwave, and an integrated dishwasher, along with space for a washing machine and an American-style fridge freezer. Double doors open directly onto the garden, creating an ideal space for both everyday living and entertaining. The ground floor also benefits from a dual aspect dining room, providing a bright and airy setting for family meals, and a spacious living room featuring double doors leading out to the garden.

Upstairs, the first floor offers loft access and an airing cupboard. There are four well proportioned bedrooms, all of which include custom-built wardrobes complete with integrated lighting. Two of the bedrooms enjoy the added luxury of en suite shower rooms, while the remaining rooms are served by a modern family bathroom.

Externally, the property boasts a fully enclosed rear garden, mainly laid to lawn with a patio area perfect for outdoor dining and relaxation. A door leads to the converted garage, which benefits from light, power, and heating, making it an excellent space for a home office, gym or additional reception room. To the front, there is driveway parking providing off-road parking for multiple vehicles.

This exceptional home combines modern living with practical design, making it an ideal choice for families seeking both space and convenience.

  • FOUR BEDROOM DETACHED FAMILY HOME
  • BERRYFIELDS DEVELOPMENT
  • BRAND NEW HIGH SPECIFICATION KITCHEN
  • DRIVEWAY PARKING
  • BEDROOMS BENEFIT FROM CUSTOM BUILT WARDROBES
  • MULTIPLE RECEPTION ROOMS
  • CONVERTED GARAGE WITH LIGHT, POWER & HEATING
  • TWO BEDROOMS WITH EN SUITE BATHROOMS
  • GROUND FLOOR CLOAKROOM
  • CLOSE TO SCHOOLS, STATION AND AMENITIES
Floorplan for Elize Close, Berryfields, Aylesbury
EPC Graph for Elize Close, Berryfields, Aylesbury
Similar Property

Get an instant online valuation

Find out how much your property is worth