Penn Road, Southcourt, Aylesbury

For Sale £470,000 (Freehold)

4 1 2

LOCATION

A family-based estate, very well established with some parts dating back to the 1930’s. The area offers shopping facilities in a number of locations within the estate as well as fast food restaurants, religious centres, community halls and regular bus services reaching in and around the town. The new pedestrian bridge by the Railway Station links the heart of the town centre and Southcourt making all amenities very accessible by foot or cycle. There is a primary school and secondary school on the estate and the area forms part of the Aylesbury Grammar school catchment.

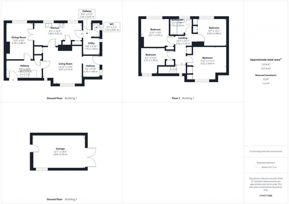
ACCOMMODATION

The property is approached via a generous front garden, mainly laid to lawn with a pathway leading to the entrance, complemented by a range of established trees and shrubs.

Upon entering, the welcoming entrance hall provides access to the principal ground floor rooms and features a staircase rising to the first floor, along with a useful storage cupboard. The living room is a spacious reception area, enhanced by a feature fireplace, creating a cosy focal point. A separate dining room also benefits from its own feature fireplace, offering an ideal space for family meals and entertaining.

The kitchen is fitted with a range of wall and base units, providing ample worktop space, with room for essential appliances including a washing machine and cooker. Leading from the kitchen is a practical utility room, offering additional space for appliances such as a fridge and further white goods. A convenient downstairs cloakroom completes the ground floor accommodation.

To the first floor, there is access to the loft and four well-proportioned bedrooms, all of which benefit from built-in wardrobes, providing excellent storage. The family bathroom serves all bedrooms.

Externally, the rear garden features a patio area ideal for outdoor dining, a lawned section, and an additional covered area offering versatile use. The property also benefits from a garage equipped with light and power.

This well-appointed home combines generous living space with a popular location, making it an ideal choice for growing families.

  • POPULAR RESIDENTIAL AREA
  • FOUR BEDROOM SEMI-DETACHED HOUSE
  • MULTIPLE RECEPTION ROOMS
  • UTILITY AND CLOAKROOM
  • GARAGE WITH LIGHT AND POWER
  • LARGE FRONT AND REAR GARDENS
  • BEDROOMS ALL WITH BUILT-IN WARDROBES
  • CLOSE TO PARKS, LOCAL AMENITIES AND SCHOOLS
Floorplan for Penn Road, Southcourt, Aylesbury
EPC Graph for Penn Road, Southcourt, Aylesbury
Similar Properties

Get an instant online valuation

Find out how much your property is worth