Old Forge Gardens, Bierton, Aylesbury

For Sale £385,000 (Freehold)

2 1 1

LOCATION

Bierton Village is situated on the north eastern outskirts of Aylesbury with good road links to Milton Keynes and the A41 towards London/M25. The property is within short walking distance of Bierton Church of England Combined School for Infant and Junior. For secondary education the property falls into the Aylesbury Grammar school catchment area. As well as good schooling the village benefits from several amenities including a church, village hall, tennis courts, dynamic golf driving range and The Barn restaurant. Nearby Aylesbury town centre has further amenities and mainline railway service to London Marylebone in approx 55mins.

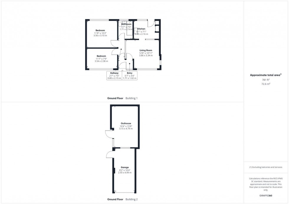
ACCOMMODATION

The accommodation begins with a welcoming entrance hall. The living room offers a comfortable space, while the kitchen provides scope for improvement. There are two double bedrooms and a bathroom completing the internal layout.

Externally, the property benefits from a front garden laid mainly to lawn with a pathway leading to the front door. To the rear, there is an enclosed garden featuring a patio area, with the remainder laid to grass and leading to an outhouse, offering useful storage space. The property also includes a garage and a driveway providing off-road parking for one vehicle.

This bungalow offers fantastic potential in a village location and is ideal for those looking to undertake a refurbishment project.

  • BIERTON VILLAGE
  • TWO BEDROOM DETACHED BUNGALOW
  • NO UPPER CHAIN
  • IN NEED OF UPDATING AND REFURBISHMENT
  • GARAGE AND DRIVEWAY
  • FRONT AND REAR GARDENS
  • TWO DOUBLE BEDROOMS
  • GOOD ROAD LINKS
  • OUTHOUSE FOR ADDITIONAL STORAGE
Floorplan for Old Forge Gardens, Bierton, Aylesbury
EPC Graph for Old Forge Gardens, Bierton, Aylesbury
Similar Property

Get an instant online valuation

Find out how much your property is worth