Witham Way, Walton Court, Aylesbury

For Sale £350,000 (Freehold)

3 1 2

LOCATION

A family-based estate, very well established with some parts dating back to the 1930’s. The area offers shopping facilities in a number of locations within the estate as well as fast food restaurants, religious centres, community halls and regular bus services reaching in and around the town. The new pedestrian bridge by the Railway Station links the heart of the town centre and Southcourt making all amenities very accessible by foot or cycle. There is a primary school and secondary school on the estate and the area forms part of the Aylesbury Grammar school catchment.

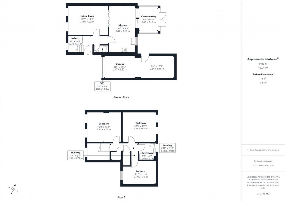
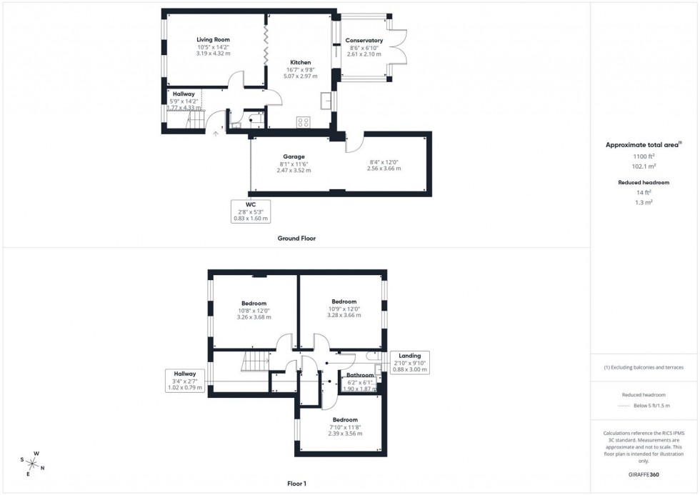
ACCOMMODATION

The accommodation begins with an entrance hall with stairs rising to the first floor and access to a convenient downstairs WC. The living room is a welcoming space featuring a fireplace as a focal point, with double doors opening through to the kitchen/diner, allowing for an open and sociable layout when desired.

The kitchen is fitted with a range of units and includes an inset gas hob with oven and cooker hood over. There is space for a washing machine as well as room for a dining table and chairs, making it a practical family space. Sliding doors lead through to the conservatory, which offers additional reception space with room for furniture and doors opening out to the rear garden.

On the first floor, the landing provides loft access and useful storage cupboards. There are three bedrooms, offering flexible accommodation for families, guests or home working, along with a family bathroom.

Externally, the property benefits from an enclosed rear garden which is fully paved for ease of maintenance. There is a garage fitted with an up and over door, along with light and power. A driveway is located directly in front of the garage, providing off-road parking.

Overall, this property represents a fantastic opportunity to acquire a comfortable home with practical living space, parking and no onward chain.

  • POPULAR RESIDENTIAL LOCATION
  • THREE BEDROOM TERRACED HOUSE
  • NO UPPER CHAIN
  • GARAGE AND DRIVEWAY
  • IDEAL FIRST TIME BUY OR STARTER HOME
  • DOWNSTAIRS WC
  • ENCLOSED REAR GARDEN
  • KITCHEN / DINER
Floorplan for Witham Way, Walton Court, Aylesbury
EPC Graph for Witham Way, Walton Court, Aylesbury
Similar Properties

Get an instant online valuation

Find out how much your property is worth