Albert Street, Aylesbury, Buckinghamshire

For Sale £270,000 (Freehold)

2 1 3

LOCATION

Aylesbury town centre is within walking distance, with an excellent range of shopping and recreational facilities, numerous restaurants and a main line rail station (Marylebone 1 hour). Aylesbury is particularly well served by three of the area’s top performing Grammar Schools- Aylesbury Grammar School for boys, High School for Girls and Sir Henry Floyd (mixed). Inspired by the rolling Chiltern Hills, the Aylesbury Waterside Theatre provides an entertaining evening out at the heart of the Canalside and beautiful outdoor purpose-built restaurant and entertainment. Short walking distance to Aquavale swimming & fitness centre, Tesco superstore & the mainline line rail station (Marylebone 1 hour) & there is good access by road onto the A41 leading towards London/M25.

ACCOMMODATION

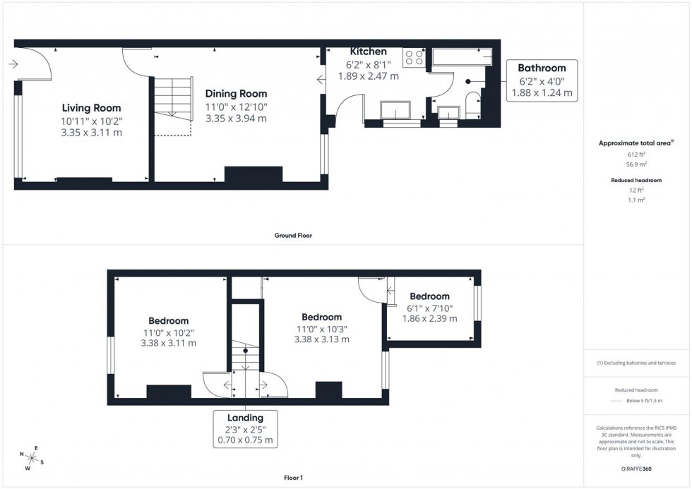
The property is entered directly into the living room, creating a bright and welcoming space. This leads through to the dining room, which offers ample space for a dining table and chairs and features stairs rising to the first floor. Beyond the dining room is a galley-style kitchen fitted with a range of units and providing space for a cooker, washing machine and under-counter fridge and freezer. To the rear of the property is a ground floor bathroom fitted with a bath suite.

To the first floor, the landing provides access to the loft and leads to two bedrooms. The main bedroom benefits from access to an additional study
ursery room, offering flexibility for those working from home, requiring a dressing room or needing space for a young child.

Externally, the property enjoys an enclosed rear garden laid with patio and lawn. Gated rear access leads to off-road parking, accessed via a service road.

This centrally located home offers practical and versatile accommodation with the added benefit of rear parking.

  • CENTRAL LOCATION
  • TWO BEDROOM TERRACED HOUSE
  • DOWNSTAIRS BATHROOM
  • OFF-ROAD PARKING TO THE REAR
  • WALKING DISTANCE TO TOWN CENTRE
  • WALKING DISTANCE TO GRAMMAR SCHOOLS
  • MAIN BEDROOM WITH ADDITIONAL STUDY/NURSERY
  • ENCLOSED REAR GARDEN
Floorplan for Albert Street, Aylesbury, Buckinghamshire
EPC Graph for Albert Street, Aylesbury, Buckinghamshire
Similar Properties

Get an instant online valuation

Find out how much your property is worth