Milton Road, Aylesbury, Buckinghamshire

For Sale £650,000 (Freehold)

5 3 3

LOCATION

Situated on the southside of Aylesbury, with easy access towards London/M40 on the A413 and benefits from being within equal distance of Aylesbury and Stoke Mandeville Train Stations offering mainline services into London Marylebone. An ideal location for families the estate is within walking distance from Aylesbury Grammar and High School and is the catchment area for William Harding Combined. Further benefits to this location includes: Small parade of shops – walking distance to the Guttman Gym and Swimming pool – close by is Stoke Mandeville Hospital.

ACCOMMODATION

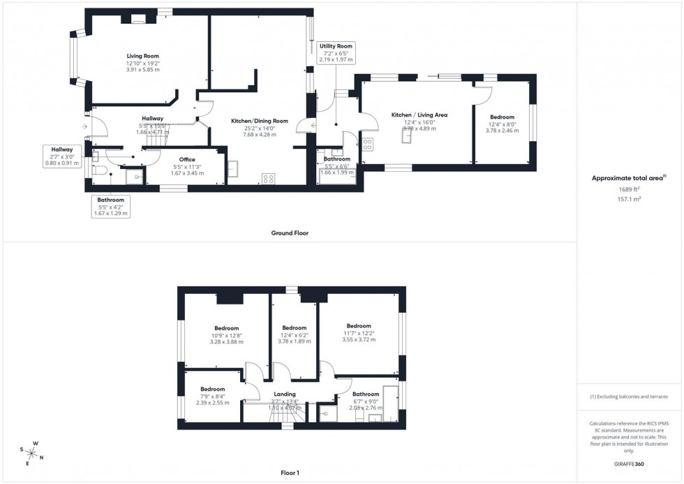
The accommodation begins with a welcoming entrance hall, complete with stairs rising to the first floor and access to the principal ground floor rooms. There is a convenient downstairs shower room and a separate office, perfect for home working or study.

The dual aspect living room is a particularly attractive space, filled with natural light and centred around a feature fireplace, creating a warm and inviting focal point for relaxing or entertaining.

To the rear of the property, the kitchen/dining room forms the heart of the home. Fitted with an island and breakfast bar, it offers space for a cooker and fridge along with ample storage and preparation areas. There is plenty of room for a large dining table and additional furniture, making it ideal for family meals and social gatherings. A door provides direct access to the rear garden.

Leading off the kitchen is a useful utility area with space for a washing machine and a further door to the garden. From here, there is access to a bathroom and an additional living area incorporating its own kitchen and bedroom. This flexible space offers excellent potential as an annexe for extended family, guest accommodation or independent living.

On the first floor, a landing provides access to an airing cupboard and four well-proportioned bedrooms, all served by a family bathroom.

Externally, the property boasts a great-sized rear garden featuring a large paved patio area. Beyond this lies an extensive lawn bordered by established trees and shrubs, creating a pleasant and private setting. A brick-built garden shed provides useful outdoor storage. To the front, driveway parking offers convenient off-road parking.

  • FIVE BEDROOM DETACHED FAMILY HOME
  • SOUTHSIDE LOCATION
  • EXCELLENT ROAD LINKS
  • ANNEXE-STYLE LIVING AREA WITH KITCHEN & BEDROOM
  • GREAT SIZE REAR GARDEN
  • DRIVEWAY PARKING
  • SEPARATE HOME OFFICE
  • CLOSE TO WELL-REGARDED SCHOOLS
  • THREE BATHROOMS
  • SPACIOUS KITCHEN/DINING ROOM
Floorplan for Milton Road, Aylesbury, Buckinghamshire
EPC Graph for Milton Road, Aylesbury, Buckinghamshire

Get an instant online valuation

Find out how much your property is worth