Turney Street, Canalside, Aylesbury

For Sale £622,000 (Freehold)

4 2 3

LOCATION

Canalside is a recently constructed private housing development situated to the southeast of the town in a lovely position siding onto the Aylesbury Arm of the Grand Union Canal. This unique location offers new owners the benefits of a town location coupled with countryside walks along the Canal Towpath and nearby Broughton Nature Reserve.
There is good access by road onto the nearby A41 leading towards London/M25 and in the other direction towards Milton Keynes/Northbound M1 on the A418. The estate falls into the Aylesbury Grammar School Catchment area and has two primary schools nearby at Broughton and Bierton. There are amenities within walking distance including a Sainsburys local, petrol Station and parade of shops at Parton Road and the town centre with all its facilities is just under a mile away.

ACCOMMODATION

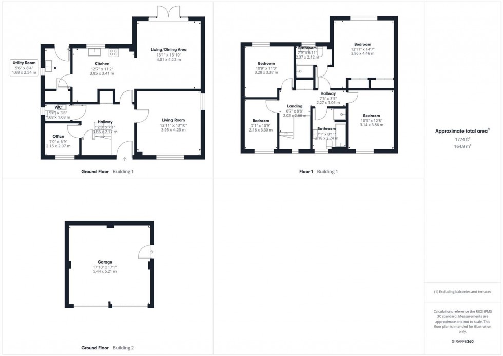
The property is entered via a welcoming entrance hall with stairs rising to the first floor and useful built-in storage cupboards. From here there is access to a downstairs cloakroom and a home office, perfect for remote working or study. The dual aspect living room is bright and spacious, providing a comfortable setting.

The kitchen is fitted with an inset gas hob with splashback and extractor fan, integrated oven and grill, and space for an American-style fridge/freezer. This leads seamlessly into a generous living/dining area, creating a fantastic social space with French doors opening directly onto the garden. A separate utility room offers space for a washing machine, an additional storage cupboard, and a door providing side access to the property.

To the first floor, the landing benefits from an airing cupboard and loft access. There are four well-sized bedrooms, with the main bedroom featuring built-in wardrobes and a modern en suite shower room. The family bathroom is fitted with an enclosed shower cubicle, a bathtub with shower attachment, WC and wash hand basin.

Externally, the property boasts a fully enclosed rear garden with multiple patio areas ideal for outdoor dining, a lawned area and a built-in planter. There is gated access to the front and a courtesy door leading directly into the garage. Further benefits include a double garage and driveway parking, completing this excellent family home.

  • FOUR BEDROOM DETACHED HOUSE
  • SMALL SELECT DEVELOPMENT
  • HOME OFFICE / STUDY
  • DOUBLE GARAGE & DRIVEWAY PARKING
  • MAIN BEDROOM WITH EN SUITE & BUILT-IN WARDROBES
  • FULLY ENCLOSED REAR GARDEN
  • UTILITY ROOM & DOWNSTAIRS WC
  • IDEAL FAMILY HOME WITH VERSATILE ACCOMMODATION
Floorplan for Turney Street, Canalside, Aylesbury
EPC Graph for Turney Street, Canalside, Aylesbury
Similar Properties

Get an instant online valuation

Find out how much your property is worth