Hearn Green, Kingsbrook, Aylesbury

Sold Subject to Contract £389,950 (Freehold)

3 2 1

LOCATION

Kingsbrook is an exciting new community of homes in Aylesbury. Designed in close consultation with RSPB, this beautiful location will ensure nature has a home too. Acres of meadowland, parks play areas & new schools will be built here making this a popular family destination. Kingsbrook is on the Southeast side of the town centre and offers good access to the A418 towards Milton Keynes and the A41 towards Tring & London. Please note there is an Estate Management charge.

ACCOMMODATION

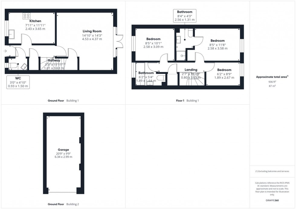
The accommodation begins with an entrance hall featuring stairs rising to the first floor, a useful storage cupboard and a downstairs cloakroom. To the front of the property is a modern fitted kitchen, equipped with an inset gas hob, oven, extractor hood and splashback, along with integrated appliances including a fridge, washing machine and dishwasher.

To the rear, the spacious living room offers a bright and comfortable living space, benefitting from a built-in storage cupboard and double doors opening directly onto the rear garden.

Upstairs, the landing provides access to the loft and an airing cupboard. There are three bedrooms, with the main bedroom enjoying the added benefit of an en-suite shower room. A family bathroom serves the remaining bedrooms.

Externally, the property boasts a fully enclosed rear garden, laid mainly to lawn with a patio area and gated side access leading to the front. Further benefits include a garage with an up-and-over door, with driveway parking positioned directly in front of the garage.

  • NEW KINGSBROOK DEVELOPMENT
  • THREE BEDROOM SEMI-DETACHED HOUSE
  • GARAGE AND DRIVEWAY
  • DOWNSTAIRS CLOAKROOM
  • MODERN KITCHEN
  • EN SUITE TO MAIN BEDROOM
  • GOOD ROAD LINKS
  • CLOSE TO SCHOOLS AND AMENITIES
Floorplan for Hearn Green, Kingsbrook, Aylesbury
EPC Graph for Hearn Green, Kingsbrook, Aylesbury
Similar Properties

Get an instant online valuation

Find out how much your property is worth