Ardenham street, Aylesbury, Buckinghamshire

For Sale £325,000 (Freehold)

3 1 1

LOCATION

Aylesbury town centre is within walking distance, with an excellent range of shopping and recreational facilities, numerous restaurants and a main line rail station (Marylebone 1 hour). Aylesbury is particularly well served by three of the area’s top performing Grammar Schools- Aylesbury Grammar School for boys, High School for Girls and Sir Henry Floyd (mixed). Inspired by the rolling Chiltern Hills, the Aylesbury Waterside Theatre provides an entertaining evening out at the heart of the Canalside and beautiful outdoor purpose-built restaurant and entertainment. Short walking distance to Aquavale swimming & fitness centre, Tesco superstore & the mainline line rail station (Marylebone 1 hour) & there is good access by road onto the A41 leading towards London/M25.

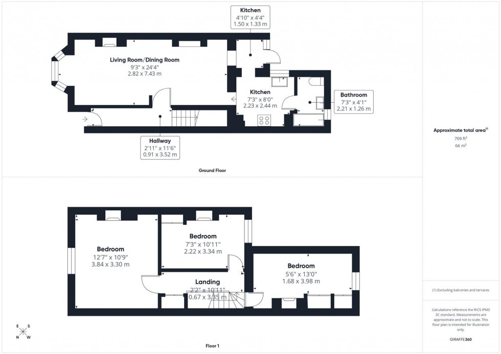
ACCOMMODATION

The accommodation begins with a welcoming entrance hall featuring stairs rising to the first floor. To the front and rear is a spacious living room/dining room, enhanced by a feature fireplace and offering ample space for both living and dining room furniture, creating an ideal environment for everyday living and entertaining.

The stylish kitchen is fitted with a modern range of units and incorporates an inset gas hob with oven and cooker hood above. A breakfast bar provides additional seating and workspace, while there is space for appliances. A door leads directly out to the rear garden, further enhancing the practicality of the space. Completing the ground floor is a well-appointed bathroom suite.

On the first floor, the landing provides access to the loft and a useful storage cupboard. There are three bedrooms, each benefitting from its own feature fireplace. Bedrooms two and three also include built-in storage, offering excellent practicality.

Externally, the property enjoys an enclosed rear garden comprising a patio area ideal for outdoor seating, a gravelled section and a lawned area. Additional features include side gate access and a shed, providing convenient storage.

This beautifully presented home combines period features with modern finishes and a superb central location, making it an excellent choice for a range of buyers.

  • CENTRAL LOCATION
  • THREE BEDROOM TERRACED HOME
  • RECENTLY REFURBISHED
  • ENCLOSED REAR GARDEN
  • SPACIOUS LIVING ROOM/DINING ROOM
  • NO UPPER CHAIN
  • CLOSE TO TOWN CENTRE, STATION AND SHOPS
  • DOWNSTAIRS BATHROOM SUITE
  • NEW OAK DOORS THROUGHOUT
  • NEW CARPET AND WINDOWS
Floorplan for Ardenham street, Aylesbury, Buckinghamshire
EPC Graph for Ardenham street, Aylesbury, Buckinghamshire
Similar Properties

Get an instant online valuation

Find out how much your property is worth