Burcott Lane, Bierton, Aylesbury

Sold Subject to Contract £650,000 (Freehold)

3 1 3

LOCATION

Bierton Village is situated on the north eastern outskirts of Aylesbury with good road links to Milton Keynes and the A41 towards London/M25. The property is within short walking distance of Bierton Church of England Combined School for Infant and Junior. For secondary education the property falls into the Aylesbury Grammar school catchment area. As well as good schooling the village benefits from several amenities including a church, village hall, tennis courts, dynamic golf driving range and The Barn restaurant. Nearby Aylesbury town centre has further amenities and mainline railway service to London Marylebone in approx 55mins.

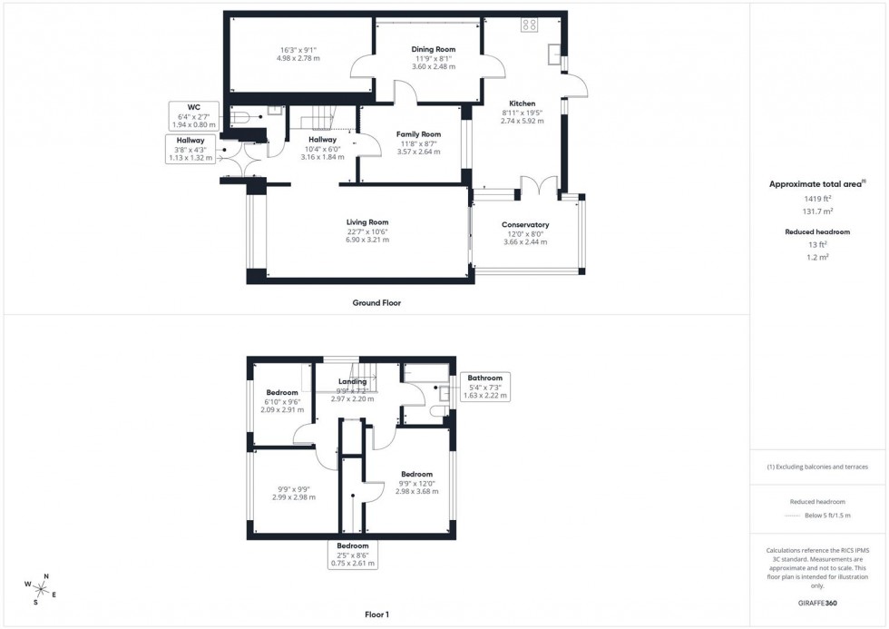
ACCOMMODATION

Located in the sought-after village of Bierton, this spacious three bedroom link-detached home offers versatile living accommodation ideal for families. The property is entered via a welcoming entrance hall, which leads to a convenient cloakroom and a bright, well-proportioned living room. Continuing through the ground floor, you will find a separate family room and a dedicated dining room, providing excellent flexibility for everyday living and entertaining. The fitted kitchen opens into a generous conservatory, creating a wonderful additional reception space with views over the garden.

Upstairs, the property offers three comfortable bedrooms and a family bathroom.

Outside, the home benefits from a large, mature rear garden perfect for outdoor dining, play and gardening enthusiasts. To the front, the converted garage provides useful additional space, while a private driveway offers ample parking.

This well-located home combines spacious interiors with a desirable village setting, making it an excellent opportunity for a wide range of buyers.

  • * SOLD BEFORE COMING TO MARKET *
  • THREE BEDROOM LINK DETACHED HOUSE
  • LARGE MATURE GARDEN
  • MULTIPLE RECEPTION ROOMS
  • VILLAGE LOCATION
  • DRIVEWAY PARKING
  • VERSATILE LIVING SPACE
  • CONVERTED GARAGE
Floorplan for Burcott Lane, Bierton, Aylesbury
EPC Graph for Burcott Lane, Bierton, Aylesbury
Similar Property

Get an instant online valuation

Find out how much your property is worth