Ingram Avenue, Bedgrove, Aylesbury

Sold Subject to Contract £425,000 (Freehold)

3 1 2

LOCATION

Bedgrove is a highly regarded development situated on the south side of Aylesbury. At the heart of the estate is Jansel Square Centre which has a range of shops, pub, post office and hairdressers. Additional benefits include a doctor’s surgery, two churches and a large recreation park with many sports clubs and activities. An ideal location for families the estate is served by the well regarded Bedgrove Infant and Junior schools and is within walking distance of the Aylesbury Grammar and Aylesbury High School. There is a frequent bus service to the town centre, good road links towards London on the A41 and A413 and the choice of Aylesbury Central or Stoke Mandeville Train Stations offering mainline services into London Marylebone.

ACCOMMODATION

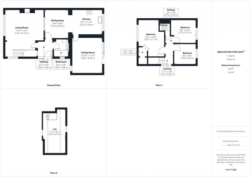
Entrance hall with storage cupboard - Ground floor bathroom suite - Living room with feature fireplace and stairs to the first floor - Dining room which is open plan into the kitchen - Kitchen with a range of fitted cupboards and work surfaces, spaces for washing machine, cooker and fridge/freezer - Family room/playroom with sliding doors to the rear garden - Landing with fixed staircase to boarded loft space - Main bedroom with fitted wardrobes and airing cupboard housing central heating boiler and hot water tank - Second double bedroom - Third single bedroom - Block paved driveway providing off road parking for several cars - South easterly facing rear garden with lawn and patio areas, ornamental fish pond, wooden pergola, timber storage shed. Rear access gate. The property backs onto Bedgrove Allotments.

  • ** SOLD SUBJECT TO CONTRACT**
  • EXTENDED SEMI DETACHED HOME
  • THREE BEDROOMS
  • THREE RECEPTION ROOMS
  • SOUTH EASTERLY FACING REAR GARDEN
  • BLOCK PAVED DRIVEWAY FOR SEVERAL CARS
  • BACKING ONTO BEDGROVE ALLOTMENTS
  • WALKING DISTANCE TO BEDGROVE INFANT AND JUNIOR SCHOOLS
  • WALKING DISTANCE TO BEDGROVE PARK
  • EASY ACCESS TO JANSEL SQUARE SHOPPING PARADE
Floorplan for Ingram Avenue, Bedgrove, Aylesbury
EPC Graph for Ingram Avenue, Bedgrove, Aylesbury
Similar Properties

Get an instant online valuation

Find out how much your property is worth