Buckingham Road, Aylesbury, Buckinghamshire

For Sale £325,000 (Freehold)

2 1 2

LOCATION

Aylesbury town centre is within walking distance, with an excellent range of shopping and recreational facilities, numerous restaurants and a main line rail station (Marylebone 1 hour). Aylesbury is particularly well served by three of the area’s top performing Grammar Schools- Aylesbury Grammar School for boys, High School for Girls and Sir Henry Floyd (mixed). Inspired by the rolling Chiltern Hills, the Aylesbury Waterside Theatre provides an entertaining evening out at the heart of the Canalside and beautiful outdoor purpose-built restaurant and entertainment. Short walking distance to Aquavale swimming & fitness centre, Tesco superstore & the mainline line rail station (Marylebone 1 hour) & there is good access by road onto the A41 leading towards London/M25.

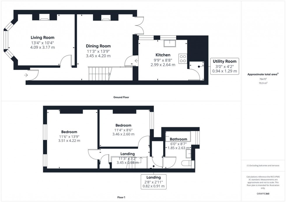
ACCOMMODATION

Upon entering the property, you are greeted by an entrance hall leading into the living room featuring a bay window that fills the space with natural light and a feature fireplace that creates a warm and inviting focal point.

The bright dining room offers ample space for family meals and entertaining, complete with stairs leading to the first floor, under-stairs storage cupboards and French doors opening onto the garden.

The kitchen has plenty of workspace and storage, offering space for a fridge, cooker and dishwasher, while a separate utility cupboard provides additional convenience with space for a washing machine.

Upstairs, the first-floor landing provides loft access and built-in cupboards for extra storage. There are two double bedrooms, both offering comfortable accommodation, and a family bathroom fitted with a bathtub with shower, WC and wash basin.

Outside, the property boasts a good-sized rear garden featuring a patio area, lawn, and a decking area ideal for outdoor dining and relaxation. The garden also includes a shed and is bordered by fencing and mature hedges, providing a good degree of privacy.

This charming home combines character features with modern practicality, offering an excellent opportunity for first-time buyers, small families or anyone looking to live close to the heart of town.

  • TWO BEDROOM SEMI-DETACHED HOUSE
  • CENTRAL LOCATION
  • WALKING DISTANCE OF TOWN CENTRE & STATION
  • GOOD-SIZED REAR GARDEN
  • LIVING ROOM AND SEPARATE DINING ROOM
  • FAMILY BATHROOM
  • IDEAL FOR FIRST-TIME BUYERS, SMALL FAMILIES OR COMMUTERS
  • TWO DOUBLE BEDROOMS
Floorplan for Buckingham Road, Aylesbury, Buckinghamshire
EPC Graph for Buckingham Road, Aylesbury, Buckinghamshire
Similar Properties

Get an instant online valuation

Find out how much your property is worth