Brimstone Lane, Buckingham Park, Aylesbury

For Sale £485,000 (Freehold)

5 4 2

LOCATION

Buckingham Park is a recently constructed development to the north of Aylesbury. The location offers good access back towards the town centre and train stations, as well as the nearby towns of Winslow and Milton Keynes. At the heart of the community is Buckingham Park Church of England Primary School. There are local shops and a community centre nearby and a brand new medical centre with GP surgery is located just a few minutes’ drive away.

ACCOMMODATION

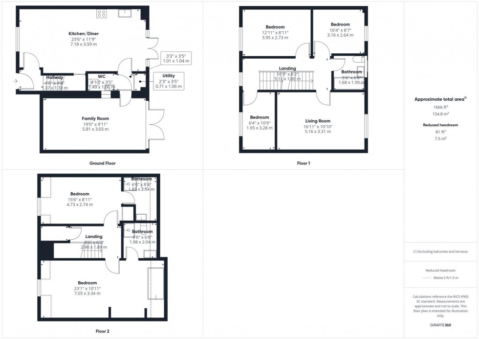
The welcoming entrance hall leads into a stunning open-plan kitchen/diner, featuring a large central island, inset gas hob and oven, integrated fridge/freezer and dishwasher, and double doors opening onto the rear garden — creating an ideal setting for family gatherings and entertaining. A useful cloakroom with utility space provides plumbing and room for a washing machine, adding everyday convenience. The family room offers an impressive bar area with space for a fridge and further double doors to the garden, offering a stylish and social space to relax or entertain guests.

On the first floor, a generous living room provides a comfortable retreat, complemented by three bedrooms and a family bathroom. The top floor hosts two further bedrooms, including a luxurious dual-aspect principal suite with built-in wardrobes, a jacuzzi bathtub and an en suite shower room. The second bedroom also benefits from its own en suite, providing flexibility for guests or family members.

Outside, the private rear garden features a gated decked area perfect for outdoor dining, along with a lawn area, hot tub and gated access to the front. An off road parking space at the front completes this impressive home, which combines comfort and practicality. The property has fibre broadband which will benefit those looking to work from home.

  • BUCKINGHAM PARK
  • FIVE BEDROOMS
  • FRONT TO BACK KITCHEN/DINER
  • CONVERTED CAR PORT TO PROVIDE ADDITIONAL GROUND FLOOR LIVING ACCOMODATION
  • FIRST FLOOR LIVING ROOM
  • FOUR BATHROOMS (TWO ENSUITES)
  • WESTERLY FACING REAR GARDEN
  • PARKING TO THE FRONT
  • GROUND FLOOR WC AND UTILITY
  • NO UPPER CHAIN
Floorplan for Brimstone Lane, Buckingham Park, Aylesbury
EPC Graph for Brimstone Lane, Buckingham Park, Aylesbury
Similar Properties

Get an instant online valuation

Find out how much your property is worth