Noble Crescent, Berryfields, Aylesbury

For Sale £460,000 (Freehold)

4 2 1

LOCATION

Berryfields is a modern development situated on the northern outskirts of Aylesbury surrounded by open countryside. The development benefits from good transport links by road towards Bicester/M40 and back to the town centre. The development is home to Aylesbury Parkway Station which offers mainline services into London Marylebone in just under an hour. There is a parade of shops and a Miller and Carter restaurant on the development as well as a secondary school and two primary schools.

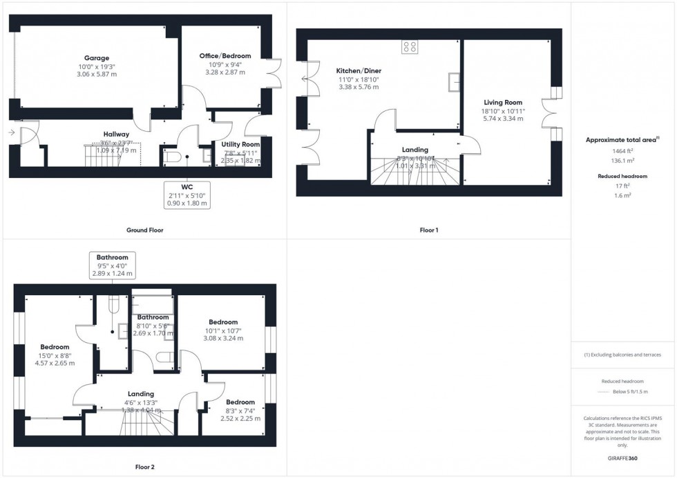
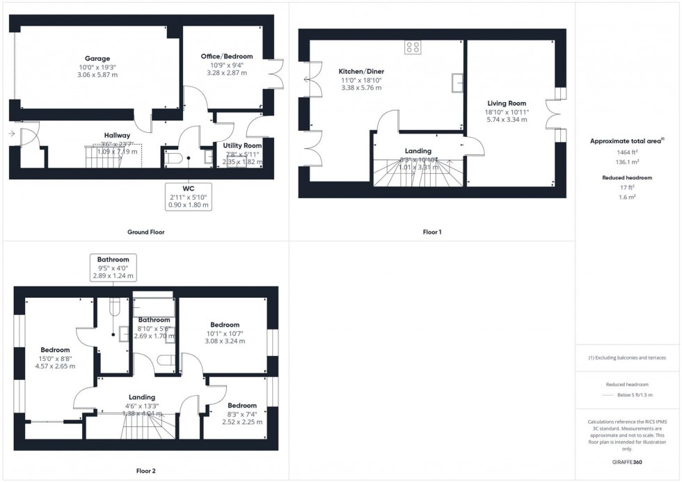
ACCOMMODATION

On the ground floor, the entrance hall provides access to the integral garage and a convenient cloakroom. A utility room offers space and plumbing for a washing machine and tumble dryer, with a door leading directly to the garden. There is also a flexible office/bedroom with double doors opening onto the rear garden.

The first floor is designed for family living, featuring a bright and airy living room with doors opening to a Juliet balcony. The modern kitchen/diner is well-equipped with an inset gas hob, splashback and cooker hood, integrated oven and grill, and space for a dishwasher and fridge. With two sets of double doors leading to Juliet balconies, this room enjoys excellent natural light and has ample space for a large dining table.

On the second floor, there are three bedrooms. The main bedroom benefits from built-in wardrobes and an en suite shower room. The remaining bedrooms are served by a modern family bathroom.

Externally, the property boasts a fully enclosed rear garden with a mix of patio, lawn, gravel, decking area, built-in planters, along with rear gate access. To the front, there is driveway parking in addition to the garage.

  • BERRYFIELDS
  • FOUR BEDROOM TERRACED HOME
  • SET OVER THREE FLOORS
  • VERSATILE LAYOUT WITH FLEXIBLE LIVING SPACE
  • GARAGE & TWO CAR DRIVEWAY
  • FIRST FLOOR LIVING ROOM
  • MAIN BEDROOM WITH EN SUITE
  • FULLY ENCLOSED REAR GARDEN
  • UTILITY AND CLOAKROOM
Floorplan for Noble Crescent, Berryfields, Aylesbury
Similar Properties

Get an instant online valuation

Find out how much your property is worth