Moore Crescent, Berryfields, Aylesbury

Sold Subject to Contract £460,000 (Freehold)

4 2 1

LOCATION

Berryfields is a modern development situated on the northern outskirts of Aylesbury surrounded by open countryside. The development benefits from good transport links by road towards Bicester/M40 and back to the town centre. The development is home to Aylesbury Parkway Station which offers mainline services into London Marylebone in just under an hour. There is a parade of shops and a Miller and Carter restaurant on the development as well as a secondary school and two primary schools, Berryfields C Of E Primary and Green Ridge Primary Academy.

ACCOMMODATION

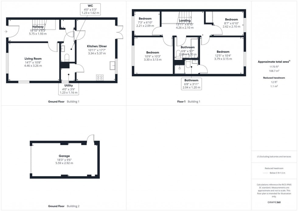
The property welcomes you via a bright entrance hall with stairs to the first floor, a cloakroom and a useful storage cupboard. To the front, the dual-aspect living room provides a light and airy space for relaxation. The heart of the home is the stylish kitchen/diner, fitted with a comprehensive range of units and integrated appliances including a fridge, washing machine, oven, grill, microwave, and dishwasher, together with an inset gas hob and splashback. There is ample space for a dining table, and French doors open directly onto the rear garden. A separate utility space completes the ground floor accommodation.

Upstairs, the master bedroom benefits from fitted wardrobes and a modern en suite shower room. There are three further bedrooms, with fitted wardrobes to bedrooms two and three, and a family bathroom.

Externally, the property enjoys an enclosed rear garden with patio and lawn areas, along with a courtesy door providing access to the garage. A block paved driveway offers off-road parking and leads to the garage.

This superb home combines space, style, and convenience in a popular residential setting, making it an ideal choice for families and professionals alike.

  • BERRYFIELDS DEVELOPMENT
  • FOUR BEDROOM SEMI-DETACHED HOME
  • NO UPPER CHAIN
  • PRESENTED IN GREAT ORDER THROUGHOUT
  • KITCHEN/DINER WITH INTEGRATED APPLIANCES
  • GARAGE AND DRIVEWAY
  • ENCLOSED REAR GARDEN
  • CLOAKROOM, EN SUITE AND FAMILY BATHROOM
  • DUAL-ASPECT LIVING ROOM
  • CLOSE TO SCHOOLS AND AMENITIES
Floorplan for Moore Crescent, Berryfields, Aylesbury
EPC Graph for Moore Crescent, Berryfields, Aylesbury
Similar Properties

Get an instant online valuation

Find out how much your property is worth