Whinchat, Watermead, Aylesbury

For Sale £400,000 (Freehold)

4 2 1

LOCATION

Watermead – situated on the northern outskirts of the town, continues to be as popular today as it was when the very first homes were released in the late 1980’s. With two magnificent lakes, a quaint village centre and open countryside on the doorstep a more picturesque setting would be hard to imagine. The location offers convenient access by road towards the M25 and M40 as well as being a short drive to Aylesbury Parkway Train Station offering mainline services to London Marylebone.

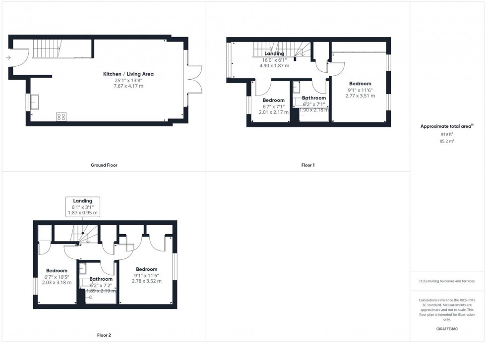
ACCOMMODATION

On entering the property, you are welcomed into a bright and contemporary open-plan kitchen/living area. The stylish kitchen is fitted with an inset gas hob, integrated oven, microwave, dishwasher, and washer/dryer, along with ample storage. The generous living and dining space provides plenty of room for sofas, a dining table, and additional furnishings, with double doors opening directly onto the rear garden.

The first floor comprises two bedrooms and a family bathroom. The second floor offers two further bedrooms and an additional bathroom, making this an ideal layout for families or those seeking flexible living arrangements.

Outside, the property benefits from a fully paved rear garden with gated access leading to the parking area. The home also comes with an allocated parking space to the rear.

  • SOUGHT AFTER WATERMEAD DEVELOPMENT
  • FOUR BEDROOM TOWNHOUSE
  • BRIGHT OPEN-PLAN KITCHEN/LIVING AREA
  • FULLY PAVED REAR GARDEN
  • ALLOCATED PARKING TO THE REAR
  • FEW MINUTES WALK FROM THE LAKE
  • SET OVER THREE FLOORS
  • KITCHEN WITH INTEGRATED APPLIANCES
  • TWO BATHROOMS
Floorplan for Whinchat, Watermead, Aylesbury
EPC Graph for Whinchat, Watermead, Aylesbury
Similar Property

Get an instant online valuation

Find out how much your property is worth